Withdrawn | Lot 10

Lower Ground Floor Flat, 3 Egerton Gardens, Knightsbridge, London, SW3 2BS

Withdrawn

  • Apartment
  • 2 Bedrooms
  • Tenure: Leasehold. The property is held on a lease from 27th January 2011 to 14th June 2105 (thus approximately 87 years unexpired).

Call the team on 020 7625 9007 for more information

Auction Date

Wed 12/12/2018

Auction Time

12:00

Auction Venue

London Marriott Hotel Regents Park, 128 King Henry’s Road, London, NW3 3ST

A Well Located Vacant Two Bedroom Lower Ground Floor Flat

The property comprises a lower ground floor two bedroom flat situated within a mid terrace former period house arranged over lower ground, raised ground and four upper floors.

Tenure

Leasehold. The property is held on a lease from 27th January 2011 to 14th June 2105 (thus approximately 87 years unexpired).

Joint Agent Corner Logo

False

By Order of the LPA Receivers

Location

The property is situated in the exclusive area of Knightsbridge close to local shops and amenities including Harrods and Harvey Nichols. The open spaces of Egerton Crescent are just a few meters away. Transport links are provided by both Knightsbridge (Piccadilly line) and South Kensington (Circle/District/Piccadilly lines) underground stations.

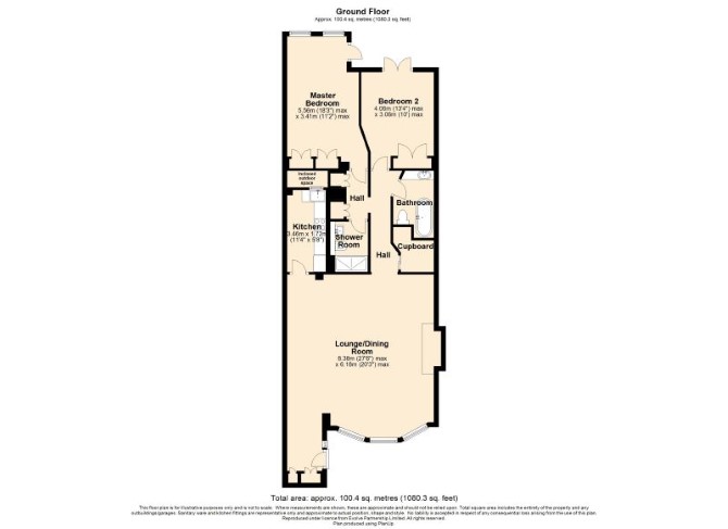
Accommodation

Lower Ground Floor Large Reception Room/Dining Area Kitchen Two Bedrooms Bathroom with WC & wash basin Shower Room with WC & wash basin GIA 100.4 sq m (1,080.3 sq ft)

Exterior

The property benefits from a small private rear patio garden and direct access to communal gardens.

Viewing Details

Open House Viewings: Monday 26th November 10:30-11:00 Friday 30th November 10:30-11:00 Monday 3rd December 10:30-11:00 Friday 7th December 10:30-11:00 Monday 10th December 10:30-11:00

Addendum

Please note that this property is subject to a Buyers Premium of £900 inc VAT. This is in addition to the buyer's admin fee of £900 inc VAT charged by the auctioneers.

Services

Interested parties are requested to make their own enquiries to the relevant authorities as to the availability of services.

Important Notice to Prospective Buyers:

We draw your attention to the Special Conditions of Sale within the Legal Pack, referring to other charges in addition to the purchase price which may become payable. Such costs may include Search Fees, reimbursement of Sellers costs and Legal Fees, and Transfer Fees amongst others.

Additional Fees

Administration Charge - Purchasers will be required to pay an administration fee of £1,800 inc VAT

Disbursements - Please see the legal pack for any disbursements listed that may become payable by the purchaser on completion.

View Larger Map

Disclaimer: The map preview provided above is for general guidance only and may not accurately reflect the exact location or surrounding buildings. Prospective buyers and interested parties are strongly advised to independently verify the precise location and surroundings before bidding.