For Sale By Auction | 12.00, 26 March 2019 | Lot 23

Flats 1-5, 15 Ellys Road, Coventry, West Midlands, CV1 4EW

Sold £312,000

  • End of Terrace House
  • 5 Bedrooms

Call the team on 020 7625 9007 for more information

Auction Date

Tue 26/03/2019

Auction Time

12.00

Auction Venue

London Marriott Hotel Regents Park, 128 King Henry’s Road, London, NW3 3ST

Viewing Times:

Wed 27 Feb

17:00-17:30

Wed 6 Mar

17:00-17:30

Sat 9 Mar

12:00-12:30

Wed 13 Mar

17:00-17:30

Sat 16 Mar

12:00-12:30

Wed 20 Mar

17:00-17:30

Sat 23 Mar

12:00-12:30

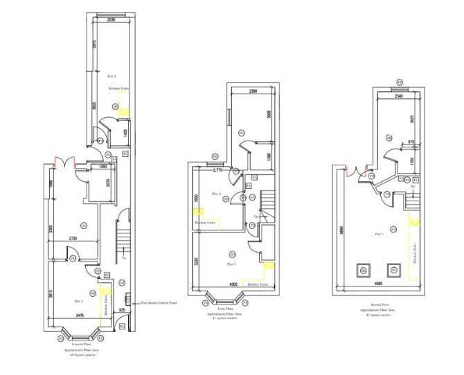
A Recently Refurbished End of Terrace Freehold Building Currently Arranged to Provide Five Self-Contained Flats. Fully Let Producing a Combined Rental Income of £44,100 per annum.

The property comprises an end of terrace converted building consisting of five self contained flats on ground, first and second floor levels. The property has been recently refurbished.

Location

The property is situated on a residential road close to local shops and amenities and is within walking distance of Coventry town centre & Coventry University. There are numerous green open spaces within easy reach. Transport links are provided by Coventry rail station.

Exterior

The property has a rear garden.

Services

Interested parties are requested to make their own enquiries to the relevant authorities as to the availability of services.

Important Notice to Prospective Buyers:

We draw your attention to the Special Conditions of Sale within the Legal Pack, referring to other charges in addition to the purchase price which may become payable. Such costs may include Search Fees, reimbursement of Sellers costs and Legal Fees, and Transfer Fees amongst others.

Additional Fees

Administration Charge - Purchasers will be required to pay an administration fee of £1,800 inc VAT

Disbursements - Please see the legal pack for any disbursements listed that may become payable by the purchaser on completion.

View Larger Map

Disclaimer: The map preview provided above is for general guidance only and may not accurately reflect the exact location or surrounding buildings. Prospective buyers and interested parties are strongly advised to independently verify the precise location and surroundings before bidding.