Withdrawn | Lot 103

Ashfield House, East Road, Tylorstown, Ferndale, Mid Glamorgan, CF43 3DA

Withdrawn

  • Commercial Property
  • Tenure: Freehold

Call the team on 020 7625 9007 for more information

Auction Date

Thu 09/05/2019

Auction Time

12.00

Auction Venue

London Marriott Hotel Regents Park, 128 King Henry’s Road, London, NW3 3ST

Viewing Times:

Fri 26 Apr

12:00-12:30

Fri 3 May

12:00-12:30

A Substantial Former Day Centre (D1 Use) on a Site Measuring Approximately 5,000 sq ft. Potential for Redevelopment of Current Building to Provide a Variety of Uses Including a Residential Scheme (Subject to obtaining all relevant consents). Offered with Vacant Possession.

The property comprises a detached, split level former day centre arranged over lower ground and ground floors. The property benefits from an internal lift and the entire site is gated with fully secured electric shutters on the doors.

Tenure

Freehold

Location

The property is situated in a mixed use area on the East side of East Road which is the main road running through the village of Tylorstown and connects the larger towns of Ferndale and Porthon. Transport links are provided by Ystrad Rhondda rail station.

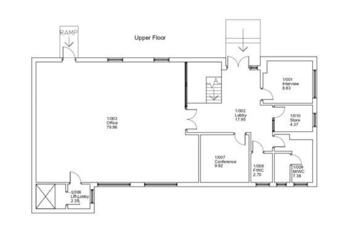
Accommodation

Lower Ground Floor Function Room Kitchen Store Room Boiler Room Ladies & Gents WC’s Ground Floor Entrance Lobby Open Plan Office Two Smaller Offices Store Room Ladies & Gents WC’s GIA approximately 268.07 sq m (2,885.48 sq ft)

Exterior

The property benefits from off-street parking to the rear of the building accessed via a security gate. There is a rear garden with a decked area. The front benefits from two separate entrances.

Local Planning Authority: Rhondda Cynon Taf County Borough Council (www.rctcbc.gov.uk)

Services

Interested parties are requested to make their own enquiries to the relevant authorities as to the availability of services.

Important Notice to Prospective Buyers:

We draw your attention to the Special Conditions of Sale within the Legal Pack, referring to other charges in addition to the purchase price which may become payable. Such costs may include Search Fees, reimbursement of Sellers costs and Legal Fees, and Transfer Fees amongst others.

Additional Fees

Administration Charge - Purchasers will be required to pay an administration fee of £1,800 inc VAT

Disbursements - Please see the legal pack for any disbursements listed that may become payable by the purchaser on completion.

View Larger Map

Disclaimer: The map preview provided above is for general guidance only and may not accurately reflect the exact location or surrounding buildings. Prospective buyers and interested parties are strongly advised to independently verify the precise location and surroundings before bidding.