For Sale By Auction | 12.00, 20 June 2019 | Lot 64

219 Marsh Road, Luton, Bedfordshire, LU3 2RT

Sold £283,000

  • Bungalow
  • 3 Bedrooms
  • Tenure: Freehold

Call the team on 020 7625 9007 for more information

Auction Date

Thu 20/06/2019

Auction Time

12.00

Auction Venue

London Marriott Hotel Regents Park, 128 King Henry’s Road, London, NW3 3ST

Viewing Times:

Tue 4 Jun

16:15-16:45

Wed 5 Jun

16:15-16:45

Mon 10 Jun

16:15-16:45

Thu 13 Jun

16:15-16:45

Mon 17 Jun

16:15-16:45

Wed 19 Jun

16:15-16:45

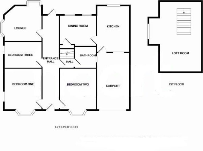
A Four Bedroom Two Reception Room Detached Chalet Bungalow. There is Permitted Development Consent for a Single Storey Side and Rear Extension.

The property comprises a four bedroom detached chalet bungalow arranged over ground and first floors. The property requires a program of refurbishment.

Tenure

Freehold

Location

The property is situated on a predominantly residential road in Luton close to local shops and amenities. The open spaces of Waulud's Bank are within easy reach. Transport links are provided by Leagrave rail station.

Accommodation

Ground Floor Two Reception Rooms Three Bedrooms Kitchen Bathroom with WC & wash basin First Floor Further Bedroom

Exterior

The property benefits from both front and rear gardens with off street parking and a carport. There is potential to add a side extension to create a further room (subject to obtaining all relevant consents).

Planning

Luton Borough Council Permitted the following Certificate of Lawfulness Application (18/01319/LAWP) on 8th January 2019: 'Certificate of Lawfulness of Proposed Development - Erection of a single storey side/rear extension'

Services

Interested parties are requested to make their own enquiries to the relevant authorities as to the availability of services.

Important Notice to Prospective Buyers:

We draw your attention to the Special Conditions of Sale within the Legal Pack, referring to other charges in addition to the purchase price which may become payable. Such costs may include Search Fees, reimbursement of Sellers costs and Legal Fees, and Transfer Fees amongst others.

Additional Fees

Administration Charge - Purchasers will be required to pay an administration fee of £1,800 inc VAT

Disbursements - Please see the legal pack for any disbursements listed that may become payable by the purchaser on completion.

View Larger Map

Disclaimer: The map preview provided above is for general guidance only and may not accurately reflect the exact location or surrounding buildings. Prospective buyers and interested parties are strongly advised to independently verify the precise location and surroundings before bidding.