For Sale By Auction | 12.00, 30 October 2019 | Lot 32

Museum Resource Centre, 14 Ryegate Road, Colchester, Essex, CO1 1YG

*Guide | £925,000+ (plus fees)

  • Residential Development
  • 9 Bedrooms
  • Tenure: Freehold

Call the team on 020 7625 9007 for more information

Auction Date

Wed 30/10/2019

Auction Time

12.00

Auction Venue

London Marriott Hotel Regents Park, 128 King Henry’s Road, London, NW3 3ST

Viewing Times:

Tue 15 Oct

13:30-14:30

Fri 18 Oct

13:30-14:30

Mon 21 Oct

13:30-14:30

Sat 26 Oct

10:00-11:00

Mon 28 Oct

13:30-14:30

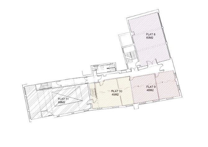
A Well Located Substantial Former Museum Measuring Approximately 13,888 sq. ft. (1,290 sq m). Offered with Planning Permission to Convert the Existing Property to Provide Nine Large Self-Contained Flats with Associated Parking.

The property comprises a substantial part three, part five storey building formerly used as a museum. There is currently planning permission to create nine luxury apartments but we understand from the vendor and their planning adviser that an alternative scheme for 17 units would be considered favourably (subject to obtaining all relevant consents).

Tenure

Freehold

Location

The property is situated in a sought after position of this historic town. Colchester Castle and Castle Park are immediately to the east of the building. All Town Centre shops, leisure facilities and railway stations are within easy walking distance.

Planning

Colchester Borough Council granted the following planning permission (ref: 182869) on 26th July 2019: "For the conversion of the building from Class D1 (museum) to residential use (Class C3) (nine apartments) with associated demolition works; internal and external alterations; car/cycle parking and bin storage areas and infrastructure works." We have been told that the vendor's planning advisers are of the opinion that an alternative scheme for 17 units would be considered favourably.

Services

Interested parties are requested to make their own enquiries to the relevant authorities as to the availability of services.

Important Notice to Prospective Buyers:

We draw your attention to the Special Conditions of Sale within the Legal Pack, referring to other charges in addition to the purchase price which may become payable. Such costs may include Search Fees, reimbursement of Sellers costs and Legal Fees, and Transfer Fees amongst others.

Additional Fees

Administration Charge - Purchasers will be required to pay an administration fee of £1,800 inc VAT

Disbursements - Please see the legal pack for any disbursements listed that may become payable by the purchaser on completion.

View Larger Map

Disclaimer: The map preview provided above is for general guidance only and may not accurately reflect the exact location or surrounding buildings. Prospective buyers and interested parties are strongly advised to independently verify the precise location and surroundings before bidding.