For Sale By Auction | 18 July 2023 | Lot 4

48 Newfield Street, Stoke-on-Trent, Staffordshire

Sold £55,000

  • Property For Sale
  • Freehold

Call the team on 020 7625 9007 for more information

Auction Closed

Viewing Times

Please call Auction House London on 020 7625 9007 to arrange a viewing

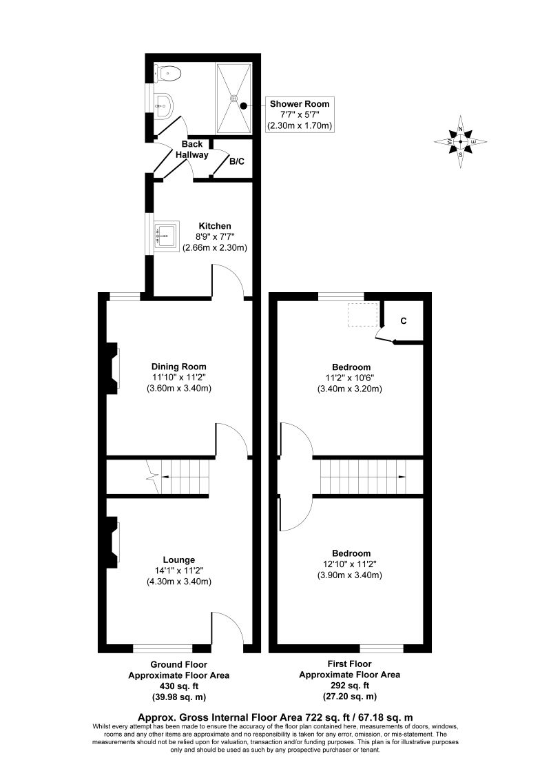
The property comprises a two bedroom mid terrace house arranged over ground and first floors.

Tenure

Freehold

Location

The property is situated on a residential road close to local shops and amenities. The open spaces of Victoria Park are close by. Transport links are provided by Longport rail station.

Accommodation

Ground Floor Two Reception Rooms Kitchen Shower Room First Floor Two Bedrooms

Exterior

The property benefits from a rear yard.

Services

Interested parties are requested to make their own enquiries to the relevant authorities as to the availability of services.

Additional Fees

Buyer's Premium - Non-refundable £1,200 inc VAT payable on the fall of the virtual gavel.

Administration Charge - Purchasers will be required to pay an administration fee of £1,800 inc VAT

Disbursements - Please see Legal Pack for any Disbursements.

Please see the legal pack for any disbursements listed that may become payable by the purchaser on completion.