For Sale By Auction | 19 September 2023 | Lot 6

46 Devonshire Road, Blackpool, Lancashire

Sold £71,000

  • Property For Sale
  • Freehold

Call the team on 020 7625 9007 for more information

Auction Closed

Viewing Times

Please call Auction House London on 020 7625 9007 to arrange a viewing

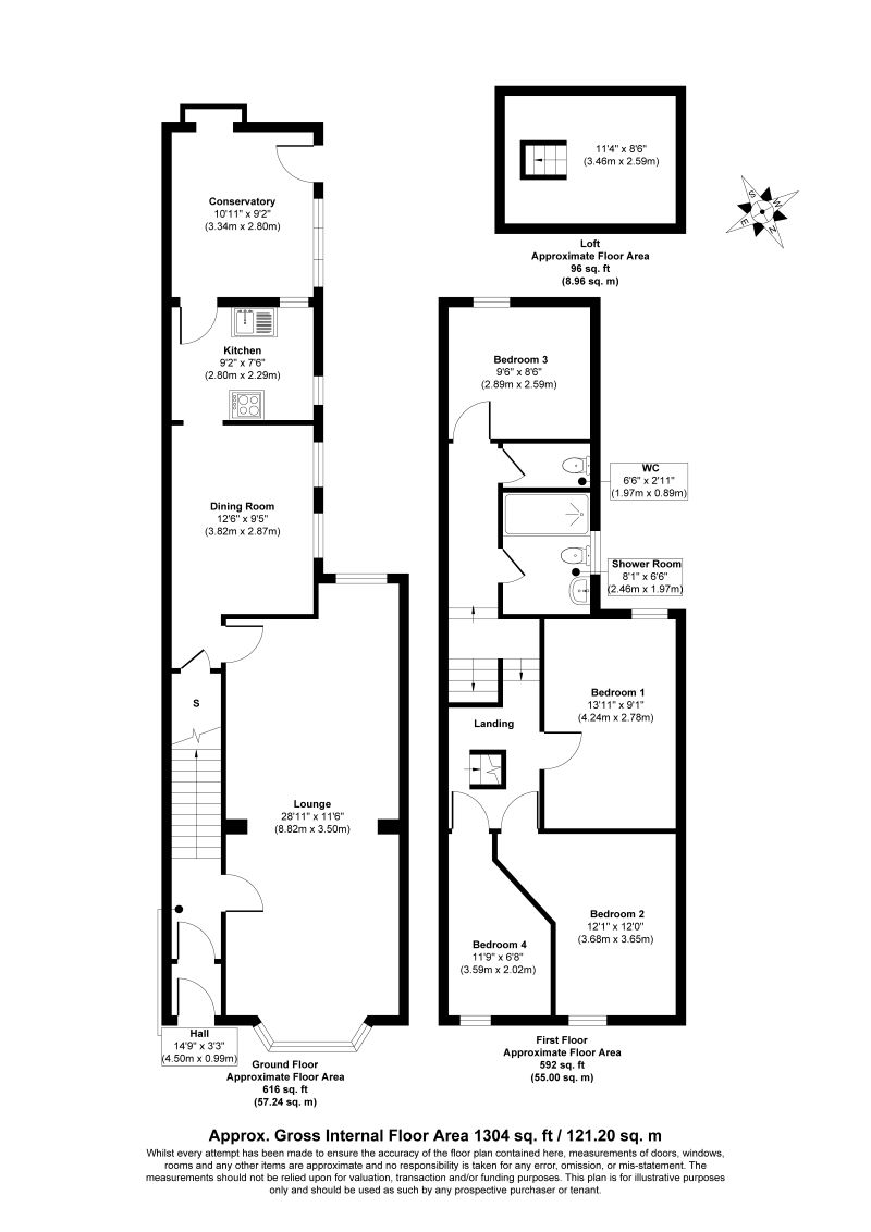
The property comprises an eight room mid terrace house arranged over ground and two upper floors.

Tenure

Freehold

Location

The property is situated on a residential road close to local shops and amenities. The open spaces of Kingscote Park are within easy reach. Transport links are provided by Blackpool North rail station.

Accommodation

Ground Floor Two Rooms Kitchen Conservatory First Floor Four Rooms Bathroom Separate WC Loft Room

Exterior

The property benefits from off street parking.

Services

Interested parties are requested to make their own enquiries to the relevant authorities as to the availability of services.

Additional Fees

Buyer's Premium - £1,800.00 including VAT payable on the fall of the Virtual Gavel.

Administration Charge - Purchasers will be required to pay an administration fee of £1,800 inc VAT

Disbursements - Please see Legal Pack for any Disbursements.

Please see the legal pack for any disbursements listed that may become payable by the purchaser on completion.