For Sale By Auction | 20 June 2025

78 Caroline Street, Hetton-le-Hole, Houghton Le Spring, Tyne And Wear

Sold £40,000

  • Property For Sale
  • Freehold

Call the team on 020 7625 9007 for more information

Auction Closed

Viewing Times

Please call Auction House London on 020 7625 9007 to arrange a viewing

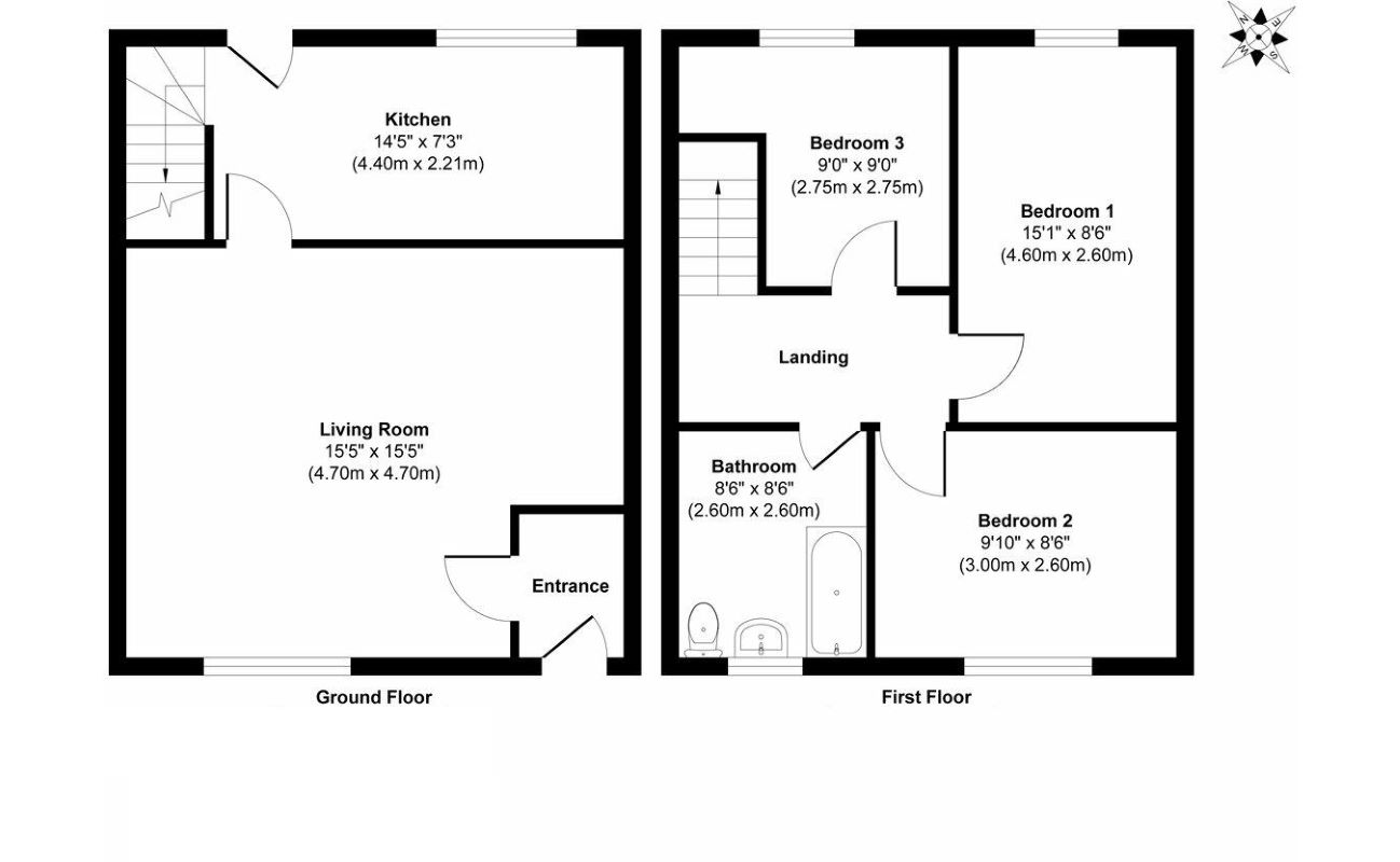
The property comprises a three bedroom mid terrace house arranging over ground and first floors.

Tenure

Freehold

Location

The property is situated on a residential road close to local shops and amenities. The open spaces of Hetton Lyons Country Park are within easy reach. Transport links are provided by Seaham rail station.

Accommodation

Ground Floor Reception Room Kitchen First Floor Three Bedrooms Bathroom

Exterior

The property benefits from a rear yard.

Tenancy

The property is subject to an Assured Shorthold Tenancy at a rent of £6,300 per annum.

Energy Efficiency Rating (EPC)

Current Rating C

Services

Interested parties are requested to make their own enquiries to the relevant authorities as to the availability of services.

Additional Fees

Administration Charge - Purchasers will be required to pay an administration fee of £1,800 inc VAT

Disbursements - Please see the legal pack for any disbursements listed that may become payable by the purchaser on completion.