For Sale By Auction | 12:00, 16 May 2023 | Lot 30

29 Hollins Bank, Sowerby Bridge, West Yorkshire, HX6 2RU

Sold £85,000

  • Terraced House
  • 4 Bedrooms
  • Tenure: Freehold

Call the team on 0161 925 3254 for more information

Auction Date

Tue 16/05/2023

Auction Time

12:00

Auction Venue

Live Stream

Viewing Times:

Thu 11 May

1:15pm-1:45pm

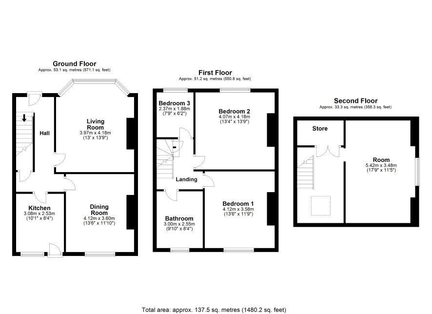
This substantial four bedroom through terrace has been a much-loved family home for many years but is now in need of modernisation and refurbishment in order to restore it to former glories. The property briefly comprises a living room, dining room and kitchen to the ground floor, three bedrooms and a bathroom to the first floor with a further bedroom / attic room on the second floor. There is also some useful storage in the cellar. Externally the property has a large but somewhat overgrown garden and garage to the front with a small yard to the rear. It is located on a popular residential street with Sowerby Bridge train station just half a mile away. Buyers should be aware that there appears to be have been some structural movement on the gable end and advised to do their own research in this regard prior to bidding.

Tenure

Freehold

Ground Floor

Hall Living Room Kitchen Dining Room

First Floor

Landing Bedroom 1 Bedroom 2 Bedroom 3 Bathroom

Second Floor

Room Store

Energy Efficiency Rating (EPC)

Current Rating TBC

Services

Interested parties are requested to make their own enquiries to the relevant authorities as to the availability of services.

Local Authority

Calderdale Metropolitan Borough Council.

Important Notice to Prospective Buyers:

We draw your attention to the Special Conditions of Sale within the Legal Pack, referring to other charges in addition to the purchase price which may become payable. Such costs may include Search Fees, reimbursement of Sellers costs and Legal Fees, and Transfer Fees amongst others.

Additional Fees

Administration Charge - Purchasers will be required to pay an administration fee of 0.9% inc VAT, subject to a minimum of £1500 inc VAT.

Disbursements - Search Fees: £240 inc VAT.

Please see the legal pack for any disbursements listed that may become payable by the purchaser on completion.

View Larger Map

Disclaimer: The map preview provided above is for general guidance only and may not accurately reflect the exact location or surrounding buildings. Prospective buyers and interested parties are strongly advised to independently verify the precise location and surroundings before bidding.