Sold Prior | Lot 9

Land On The East Side Of, 115-117 Market Street, Chorley, Lancashire, PR7 2SQ

Sold Prior

  • Land
  • Tenure: Freehold

Call the team on 0161 925 3254 for more information

Auction Date

Tue 10/09/2024

Auction Time

12:00

Auction Venue

Live Stream

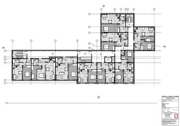
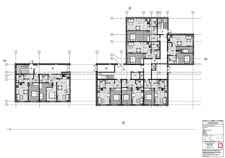
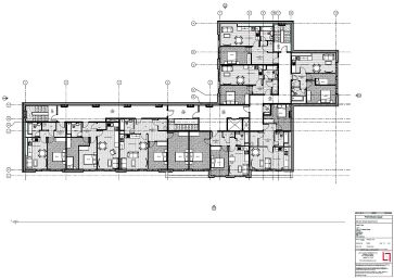
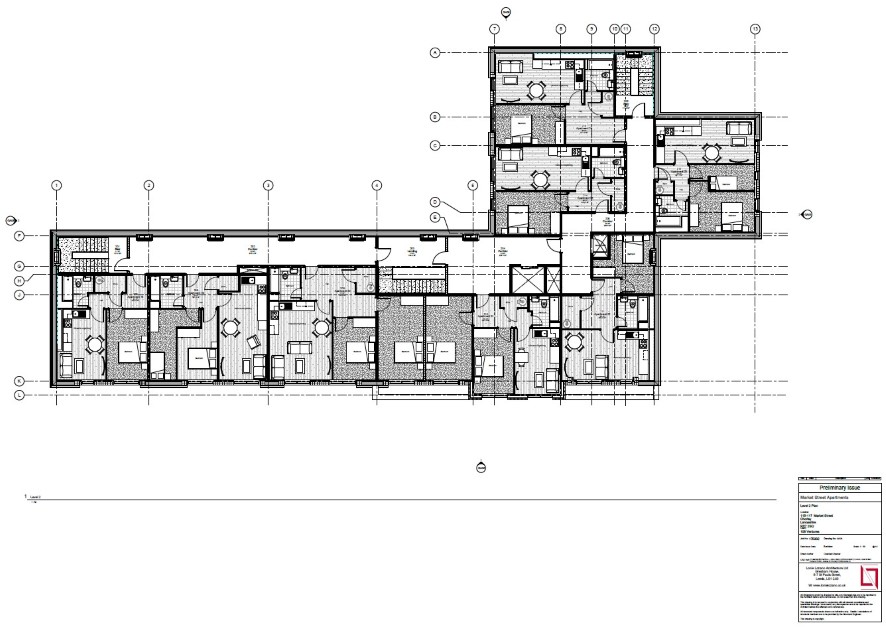
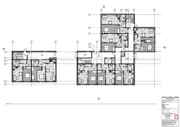
*Development Opportunity - Planning Permission Granted for 25 Flats*

A first class development opportunity located in the ever popular district of Chorley. Chorley Council planning reference 19/00145/FULMAJ, for the erection of a building comprising 25 flats following demolition of existing garage blocks. We understand that the planning has been implemented and that there is a nil rated Community Infrastructure Levy (CIL) for the development - interested parties should satisfy themselves on all matters and refer to the legal pack. We understand from the sellers that the site is approximately 1,011 sm (0.25 acres) or thereabouts in size (interested parties should make their own enquiries to confirm this, however). Rail services are available within two miles at Buckshaw Parkway and Euxton Balshaw Lane Stations. Chorley is surrounded by countryside and is a popular area to live and commute from to Manchester, Preston and Bolton. Arterial road links are accessible including the M61 and M6 Motorways.

Tenure

Freehold

Services

Interested parties are requested to make their own enquiries to the relevant authorities as to the availability of services.

Local Authority

Chorley Council

Important Notice to Prospective Buyers:

We draw your attention to the Special Conditions of Sale within the Legal Pack, referring to other charges in addition to the purchase price which may become payable. Such costs may include Search Fees, reimbursement of Sellers costs and Legal Fees, and Transfer Fees amongst others.

Additional Fees

Administration Charge - Purchasers will be required to pay an administration fee of 0.9% inc VAT, subject to a minimum of £1500 inc VAT.

Disbursements - Search Fees £300 inc VAT

Please see the legal pack for any disbursements listed that may become payable by the purchaser on completion.

View Larger Map

Disclaimer: The map preview provided above is for general guidance only and may not accurately reflect the exact location or surrounding buildings. Prospective buyers and interested parties are strongly advised to independently verify the precise location and surroundings before bidding.