For Sale By Auction | 12:00, 10 September 2024 | Lot 29

22 Willow Street, Burnley, Lancashire, BB12 0RE

Sold £47,000

  • Terraced House
  • 3 Bedrooms
  • Tenure: Leasehold

Call the team on 0161 925 3254 for more information

Auction Date

Tue 10/09/2024

Auction Time

12:00

Auction Venue

Live Stream

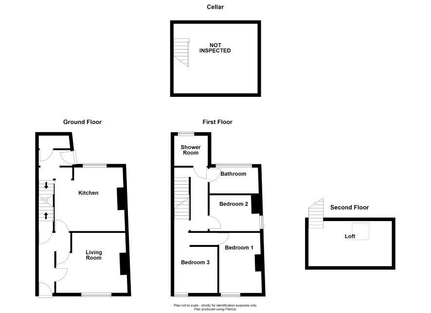
A spacious, end of terrace located close to the centre of Burnley. The property requires a schedule of renovation throughout and accommodation comprises, entrance hall, lounge, kitchen, rear porch, and store room to the ground floor, there is a cellar to the lower ground floor, and to the first floor are three bedrooms, a bathroom and a shower room. There is also a loft room to the second floor. The property is conveniently located within a short proximity to Burnley town centre, local amenities and transport links including the M65 Motorway. Please note, the cellar photograph has been provided by the vendor, this has not been inspected by Auction House Manchester. Lease Length - 900 years from 1 April 1875 Ground Rent - £18 as per register

Tenure

Leasehold

Ground Floor

Living Room Kitchen

First Floor

Bedroom 1 Bedroom 2 Bedroom 3 Bathroom Shower Room

Second Floor

Loft

Energy Efficiency Rating (EPC)

Current Rating E

Services

Interested parties are requested to make their own enquiries to the relevant authorities as to the availability of services.

Local Authority

Burnley Borough Council - Council Tax Band A

Important Notice to Prospective Buyers:

We draw your attention to the Special Conditions of Sale within the Legal Pack, referring to other charges in addition to the purchase price which may become payable. Such costs may include Search Fees, reimbursement of Sellers costs and Legal Fees, and Transfer Fees amongst others.

Additional Fees

Administration Charge - Purchasers will be required to pay an administration fee of 0.9% inc VAT, subject to a minimum of £1500 inc VAT.

Disbursements - Search Fees: £300 inc VAT.

Please see the legal pack for any disbursements listed that may become payable by the purchaser on completion.

View Larger Map

Disclaimer: The map preview provided above is for general guidance only and may not accurately reflect the exact location or surrounding buildings. Prospective buyers and interested parties are strongly advised to independently verify the precise location and surroundings before bidding.