For Sale By Auction | 12:00, 10 December 2024 | Lot 27

280 Ladbrooke Road, Ashton-under-Lyne, OL6 8PY

Sold £93,000

  • End of Terrace House
  • 2 Bedrooms
  • Tenure: Freehold

Call the team on 0161 925 3254 for more information

Auction Date

Tue 10/12/2024

Auction Time

12:00

Auction Venue

Live Stream

Viewing Times:

Thu 28 Nov

2:30pm-3:00pm

Thu 5 Dec

2:30pm-3:00pm

** Fantastic Renovation Opportunity **

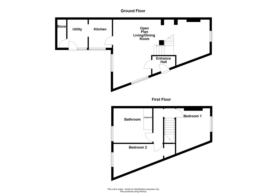
Certain to be of interest to builder, speculators and investors, this sizeable gable end terrace property is situated in a popular residential area and in need of a substantial programme of renovation but with oodles of potential here to add value. The dissimilar accommodation comprises; side entrance lobby, semi open plan living room and dining area, off shot kitchen with storage room off, two ample double bedrooms, large bathroom/w.c. Enclosed yard. The property is located within walking distance to Ashton town centre where there is an array of local amenities and schools within close proximity.

Tenure

Freehold

Energy Efficiency Rating (EPC)

Current Rating G

Services

Interested parties are requested to make their own enquiries to the relevant authorities as to the availability of services.

Local Authority

Tameside Metropolitan Borough Council - Council Tax Band A

Important Notice to Prospective Buyers:

We draw your attention to the Special Conditions of Sale within the Legal Pack, referring to other charges in addition to the purchase price which may become payable. Such costs may include Search Fees, reimbursement of Sellers costs and Legal Fees, and Transfer Fees amongst others.

Additional Fees

Administration Charge - Purchasers will be required to pay an administration fee of 0.9% inc VAT, subject to a minimum of £1500 inc VAT.

Disbursements - Search Fees: £300 inc VAT.

Please see the legal pack for any disbursements listed that may become payable by the purchaser on completion.

View Larger Map

Disclaimer: The map preview provided above is for general guidance only and may not accurately reflect the exact location or surrounding buildings. Prospective buyers and interested parties are strongly advised to independently verify the precise location and surroundings before bidding.