For Sale By Auction | 12:00, 04 February 2025 | Lot 9

Wellington Hotel, Wellington Street, Clayton Le Moors, Accrington, Lancashire, BB5 5HU

*Guide | £150,000+ (plus fees)

  • Commercial Property
  • Tenure: Freehold

Call the team on 0161 925 3254 for more information

Auction Date

Tue 04/02/2025

Auction Time

12:00

Auction Venue

Live Stream

** Attention Developers, Speculators & Investors **

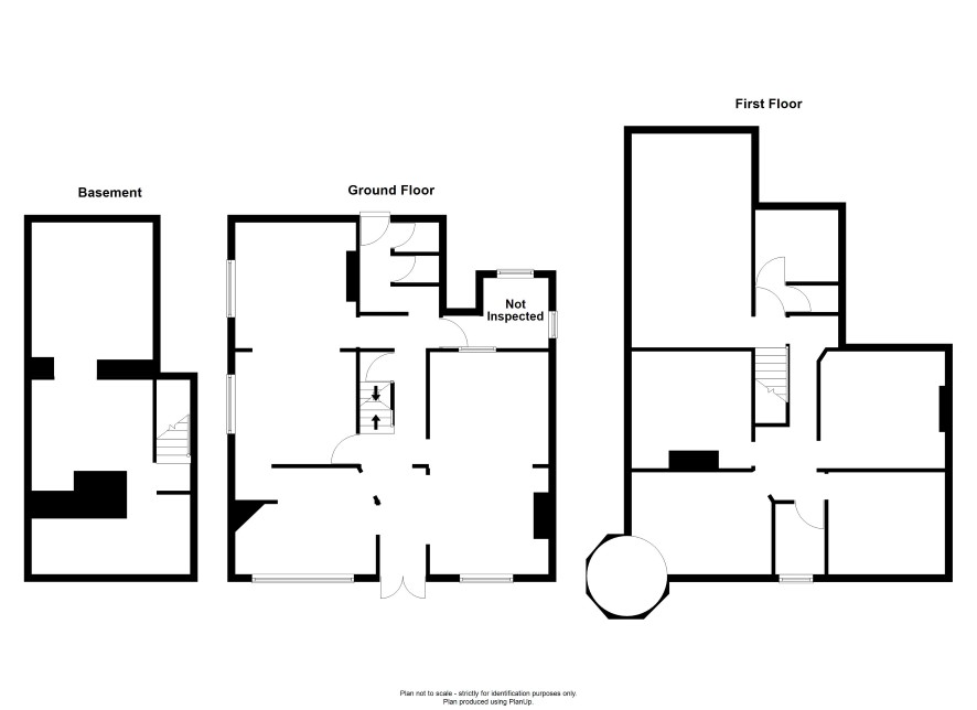
Representing an interesting renovation opportunity with potential to suit a variety of uses (subject to necessary planning permissions), this substantial Freehold building, formerly the Wellington Hotel and Public House, occupies a sizeable corner position, split over three floors (including basement) with a total square footage of over 4,000 square feet, within walking distance of various amenities and facilities. The property previously had planning for change of use from an A4 (public house) to D1 (dental practice) but, given the versatility and nature of layout may also lend itself to an HMO conversion (again stpp). The premises require a complete programme of renovation. Ground Floor: Former bar area, two function rooms, mens and female WC’s and games room. First floor: Living accommodation with two bathrooms, five deceptively large rooms and kitchen area. Basement: Ample space suitable for conversion. Local amenities, public car park and services nearby including supermarket, medical centre, pharmacy, park, dental practice, established schools, Leeds and Liverpool Canal and major transport links.

Tenure

Freehold

Energy Efficiency Rating (EPC)

Current Rating C

Services

Interested parties are requested to make their own enquiries to the relevant authorities as to the availability of services.

Local Authority

Hyndburn Borough Council.

Important Notice to Prospective Buyers:

We draw your attention to the Special Conditions of Sale within the Legal Pack, referring to other charges in addition to the purchase price which may become payable. Such costs may include Search Fees, reimbursement of Sellers costs and Legal Fees, and Transfer Fees amongst others.

Additional Fees

Administration Charge - Purchasers will be required to pay an administration fee of 0.9% inc VAT, subject to a minimum of £1500 inc VAT.

Disbursements - Please see the legal pack for any disbursements listed that may become payable by the purchaser on completion.

View Larger Map

Disclaimer: The map preview provided above is for general guidance only and may not accurately reflect the exact location or surrounding buildings. Prospective buyers and interested parties are strongly advised to independently verify the precise location and surroundings before bidding.