For Sale By Auction | 12:00, 25 March 2025 | Lot 16

285-289 Whalley Road, Clayton Le Moors, Accrington, Lancashire, BB5 5QU

Sold £350,000

  • Residential Development
  • 10 Bedrooms

Call the team on 0161 925 3254 for more information

Auction Date

Tue 25/03/2025

Auction Time

12:00

Auction Venue

Live Stream

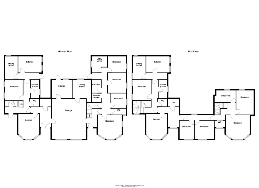
** Fantastic redevelopment investment opportunity ** With change of use and conversion permissions for 6x private self-contained residential apartments (c3 use), the imposing former 'Le Moors' assisted living residence (c2 use for 25 residents) offers a huge opportunity for a developer, investor or builder to acquire substantial premises (circa 6,200 square feet) which are sited in a prominent location close in the popular Clayton le Moors district of Accrington. Adjoining car park. Further information can be found at https://www.hyndburnbc.gov.uk/planning-application-search/ Planning application : 11/24/0143 Situated conveniently close to bus routes, local schools and amenities, as well as network links to Blackburn, Accrington, Clitheroe and major motorway links. Internal photographs and a video tour will be added to our marketing literature in due course. Carpark - Freehold Building - Long Leasehold (5000 years from 1 January 1824 - 4799 years remaining)

Energy Efficiency Rating (EPC)

Current Rating TBC

Services

Interested parties are requested to make their own enquiries to the relevant authorities as to the availability of services.

Local Authority

Hyndburn Borough Council

Important Notice to Prospective Buyers:

We draw your attention to the Special Conditions of Sale within the Legal Pack, referring to other charges in addition to the purchase price which may become payable. Such costs may include Search Fees, reimbursement of Sellers costs and Legal Fees, and Transfer Fees amongst others.

Additional Fees

Administration Charge - Purchasers will be required to pay an administration fee of 0.9% inc VAT, subject to a minimum of £1500 inc VAT.

Disbursements - Please see the legal pack for any disbursements listed that may become payable by the purchaser on completion.

View Larger Map

Disclaimer: The map preview provided above is for general guidance only and may not accurately reflect the exact location or surrounding buildings. Prospective buyers and interested parties are strongly advised to independently verify the precise location and surroundings before bidding.