For Sale By Auction | 12:00, 02 September 2025 | Lot 17

8 Silver Street, Halifax, West Yorkshire, HX1 1HS

Sold £136,000

  • Retail Property (high street)
  • Tenure: Freehold

Call the team on 0161 925 3254 for more information

Auction Date

Tue 02/09/2025

Auction Time

12:00

Auction Venue

Live Stream

Viewing Times:

Thu 28 Aug

1:00pm-1:30pm

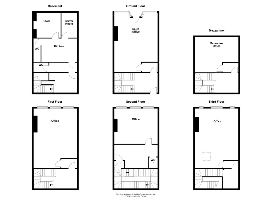
This substantial Grade II listed retail property has been let to an estate agent for many years but, due to relocation, will now be offered with vacant possession. As you might expect, the property is likely to appeal to both those looking for an affordable premises to run their business or perhaps an investor looking to let it and maximise their return. The property comprises accommodation over 6 floors including both the cellar and mezzanine with numerous offices, toilets, staff room, server room and stores. It is located in the heart of Halifax town centre with the famous Piece Hall and Train Station less than half a mile away.

Tenure

Freehold

Basement

Store Server Room Kitchen WC x2

Ground Floor

Sales Office

Mezzanine

Office

First Floor

Office

Second floor

Office

Third Floor

Office

Energy Efficiency Rating (EPC)

Current Rating E

Services

Interested parties are requested to make their own enquiries to the relevant authorities as to the availability of services.

Local Authority

Calderdale Metropolitan Borough Council

Important Notice to Prospective Buyers:

We draw your attention to the Special Conditions of Sale within the Legal Pack, referring to other charges in addition to the purchase price which may become payable. Such costs may include Search Fees, reimbursement of Sellers costs and Legal Fees, and Transfer Fees amongst others.

Additional Fees

Administration Charge - Purchasers will be required to pay an administration fee of 1.2% inc VAT, subject to a minimum of £1500 inc VAT.

Disbursements - Please see the legal pack for any disbursements listed that may become payable by the purchaser on completion.

View Larger Map

Disclaimer: The map preview provided above is for general guidance only and may not accurately reflect the exact location or surrounding buildings. Prospective buyers and interested parties are strongly advised to independently verify the precise location and surroundings before bidding.