For Sale By Auction | 12:00, 02 September 2025 | Lot 7

6 Hollins Mill Apartment, Hollins Mill Lane, Sowerby Bridge, West Yorkshire, HX6 2RG

Sold £70,000

  • Maisonette
  • 2 Bedrooms
  • Tenure: Leasehold

Call the team on 0161 925 3254 for more information

Auction Date

Tue 02/09/2025

Auction Time

12:00

Auction Venue

Live Stream

Viewing Times:

Thu 21 Aug

12:00pm-12:30pm

Thu 28 Aug

12:00pm-12:30pm

Situated in the sought after area of Sowerby Bridge, is this spacious property set over three floors, ideal for access to local amenities and great for commuting with access to the local train station a short distance from the property. Externally the property is conveniently located on the canal side that offers tranquil scenery and great walking routes. Please note the completion date is 14 days from the contract date. Lease Length - 999 years from December 2005 Ground Rent - £0 Service Charge - £600pa (for period 1st of August 2024 - 31st July 2025)

Tenure

Leasehold

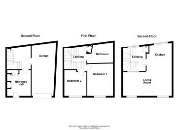
Ground Floor

Entrance Hall Storage Cupboards Integral Garage

First Floor

Two Double Bedrooms Bathroom

Second Floor

Open plan lounge and kitchen

Energy Efficiency Rating (EPC)

Current Rating E

Services

Interested parties are requested to make their own enquiries to the relevant authorities as to the availability of services.

Local Authority

Calderdale Metropolitan Borough Council - Tax Band B

Important Notice to Prospective Buyers:

We draw your attention to the Special Conditions of Sale within the Legal Pack, referring to other charges in addition to the purchase price which may become payable. Such costs may include Search Fees, reimbursement of Sellers costs and Legal Fees, and Transfer Fees amongst others.

Additional Fees

Buyer's Premium - Buyers Premium £1,560 inc VAT

Administration Charge - Purchasers will be required to pay an administration fee of 1.2% inc VAT, subject to a minimum of £1500 inc VAT.

Disbursements - Please see the legal pack for any disbursements listed that may become payable by the purchaser on completion.

View Larger Map

Disclaimer: The map preview provided above is for general guidance only and may not accurately reflect the exact location or surrounding buildings. Prospective buyers and interested parties are strongly advised to independently verify the precise location and surroundings before bidding.