For Sale By Auction | 12:00, 21 October 2025 | Lot 22

42 Hull Road, Blackpool, Lancashire, FY1 4QB

*Guide | £85,000+ (plus fees)

  • Town House
  • 8 Bedrooms
  • Tenure: Freehold

Call the team on 0161 925 3254 for more information

Auction Date

Tue 21/10/2025

Auction Time

12:00

Auction Venue

Live Stream

A good opportunity to acquire a block of six Holiday Flats (Airbnb’s), in the Centre of Blackpool Town and holiday zone, on a holiday/hotel accommodation only street. Located a short walk away from the new shopping Centre, Coral Island, Winter Gardens, Sea Life, Backlot Imax Cinema. Auction house have been told that the property was converted to holiday flats around 1988, with Architect designs and relevant consents. It benefits from front and rear roof dormers, plus the basement has a concrete floor base throughout. The property requires full internal refurbishment. The building is ripe for somebody to develop to their own standard. As regulated holiday flats the property avoids any proposed future plans by HM Gov to regulate and control the serviced accommodation industry. Plans supplied indicate an overall space of (261 Sqm / 2816 Sq Ft), Rateable Value 2023/24 £4,350 pa.

Tenure

Freehold

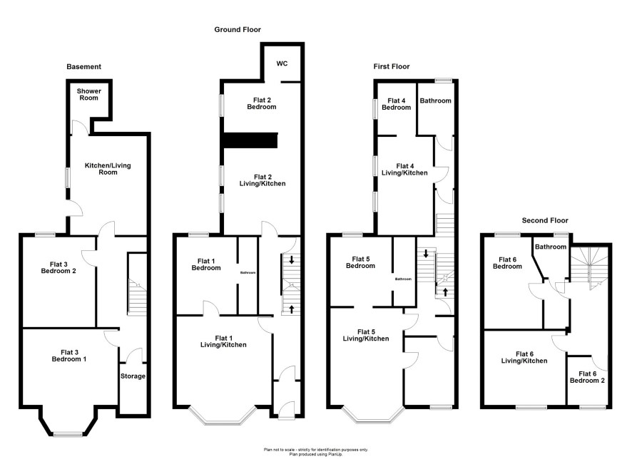
Basement

Flat 3 Kitchen/Living room Flat 3 Bedroom 1 Flat 3 Bedroom 2 Flat 3 Shower Room Storage

Ground Floor

Flat 1 Living/Kitchen Flat 1 Bedroom Bathroom Flat 2 Living/Kitchen Flat 2 Bedroom WC

First Floor

Flat 4 Living/Kitchen Flat 4 Bedroom Bathroom Flat 5 Living/Kitchen Flat 5 Bedroom

Second Floor

Flat 6 Living/Kitchen Flat 6 Bedroom 1 Flat 6 Bedroom 2

Energy Efficiency Rating (EPC)

Current Rating C,D,C,C,C,C

Services

Interested parties are requested to make their own enquiries to the relevant authorities as to the availability of services.

Local Authority

Blackpool Borough Council - Band A

Important Notice to Prospective Buyers:

We draw your attention to the Special Conditions of Sale within the Legal Pack, referring to other charges in addition to the purchase price which may become payable. Such costs may include Search Fees, reimbursement of Sellers costs and Legal Fees, and Transfer Fees amongst others.

Additional Fees

Administration Charge - Purchasers will be required to pay an administration fee of 1.2% inc VAT, subject to a minimum of £1500 inc VAT.

Disbursements - Please see the legal pack for any disbursements listed that may become payable by the purchaser on completion.

View Larger Map

Disclaimer: The map preview provided above is for general guidance only and may not accurately reflect the exact location or surrounding buildings. Prospective buyers and interested parties are strongly advised to independently verify the precise location and surroundings before bidding.