For Sale By Auction | 12:00, 24 March 2026

White Bull, 159-161 Livesey Branch Road, Blackburn, Lancashire, BB2 4QR

*Guide | £195,000+ (plus fees)

  • Investment
  • Tenure: Freehold

Call the team on 0161 925 3254 for more information

Auction Date

Tue 24/03/2026

Auction Time

12:00

Auction Venue

Live Stream

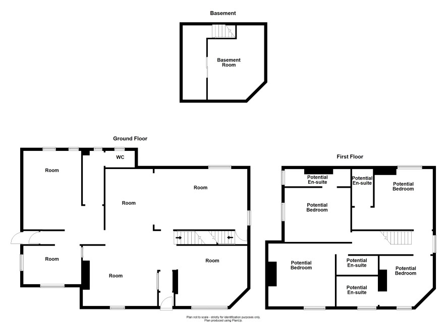
APPROX. 2,500 sft (232 sqm)

Four-bedroom detached property which has undergone partial refurbishment, the property offers an excellent chance to further enhance and add value. Formerly a public house the property occupies a prominent position on a generous corner plot with gardens to the side & rear. (change of use of a public house into 1no. dwelling house (C3) ref:10/22/0151 - decision 08/03/2022) The ground floor comprises an inner porch, entrance hall, a substantial open-plan living area, and a secondary living space divided into two rooms with a W/C. Access to a large cellar is also provided from this level. To the first floor are four bedrooms, each benefiting from its own en-suite. The en-suites are largely complete with marble tiling to both the walls and floors. Externally, the property offers gardens to the side and rear. In our opinion, part of the garden may also be suitable for conversion to off-street parking, subject to the necessary consents.

Tenure

Freehold

Energy Efficiency Rating (EPC)

Current Rating TBC

Services

Interested parties are requested to make their own enquiries to the relevant authorities as to the availability of services.

Local Authority

Blackburn with Darwen Borough Council

Important Notice to Prospective Buyers:

We draw your attention to the Special Conditions of Sale within the Legal Pack, referring to other charges in addition to the purchase price which may become payable. Such costs may include Search Fees, reimbursement of Sellers costs and Legal Fees, and Transfer Fees amongst others.

Additional Fees

Administration Charge - Purchasers will be required to pay an administration fee of 1.5% inc VAT, subject to a minimum of £2,100 inc VAT.

Disbursements - Please see the legal pack for any disbursements listed that may become payable by the purchaser on completion.

View Larger Map

Disclaimer: The map preview provided above is for general guidance only and may not accurately reflect the exact location or surrounding buildings. Prospective buyers and interested parties are strongly advised to independently verify the precise location and surroundings before bidding.