For Sale By Auction | 11:00, 30 April 2025 | Lot 7

Havelock House, 15 Havelock Street, Kettering, Northamptonshire, NN16 9PZ

Sold £355,000

  • End of Terrace House
  • 6 Bedrooms
  • Tenure: Freehold

Call the team on 01604 259 773 for more information

Auction Date

Wed 30/04/2025

Auction Time

11:00

Auction Venue

Livestream

A rare opportunity to purchase a large Victorian property comprising six self contained studio flats with communal garden and a large detached workshop and land to the side of the property giving off road parking which also has development potential for additional dwellings subject to planning permission.

The property has potential to let £38,000 per annum fully occupied and is being sold with five tenants in situ. The large workshop to the rear measures approximately 1,200 square feet with the plot store to the front set behind approached through secure gated access.

Tenure

Freehold

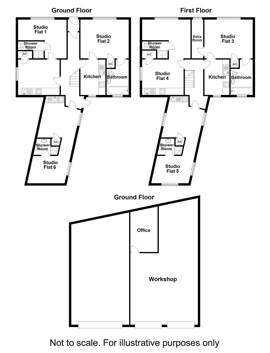
15 HAVELOCK STREET - ACCOMMODATION

GROUND FLOOR

Entrance porch and entrance hall. Studio Flat One - kitchen, lounge/bedroom and shower room. Studio Flat Two - kitchen, lounge/bedroom and bathroom. Studio Flat Six - kitchen/lounge, bedroom and shower room.

FIRST FLOOR

Landing, Studio Flat Four - kitchen, lounge/bedroom and shower room. Studio Flat Five - kitchen/lounge, bedroom and shower room. Studio Flat Three - kitchen, lounge/bedroom, room and bathroom.

OUTSIDE

COMMUNAL GARDEN

With patio area enclosed by brick walling and fencing. The communal garden enjoys privacy and sunny aspect.

WORKSHOP

The brick built Victorian workshop slightly tapers to the rear of the property. The workshop is vacant and measures approximately 1,200 square feet and has potential for conversion in further apartments or warehouse conversion subject to planning permission.

PLOT OF LAND

To the side of the existing house there is an access which may have potential for the construction of a further dwelling or apartment giving undercroft access to the rear subject to consent.

CURRENT RENTAL FIGURES

The studio flats currently rent out at:- Flat One - £550 per month Flat Two (vacant) - £550 per month Flat Three - £550 per month Flat Four - £500 per month Flat Five - £500 per month Flat Six - £510 per month Total = £38,000 per annum

COUNCIL TAX

North Northamptonshire Council Each studio flat is in band A.

ENERGY PERFORMANCE RATINGS

The current EPC ratings are:- Flat One - D Flat Two - E Flat Three - C Flat Four - D Flat Five - E Flat Six - E

Services

Interested parties are requested to make their own enquiries to the relevant authorities as to the availability of services.

Local Authority

Northampton Borough Council

Important Notice to Prospective Buyers:

We draw your attention to the Special Conditions of Sale within the Legal Pack, referring to other charges in addition to the purchase price which may become payable. Such costs may include Search Fees, reimbursement of Sellers costs and Legal Fees, and Transfer Fees amongst others.

Additional Fees

Buyer's Premium - The purchaser will be required to pay a buyers premium charge of £1,800 (£1,500 plus VAT).

Administration Charge - The purchaser will be required to pay an administration charge of £900 (£750 plus VAT).

Disbursements - Please see the legal pack for any disbursements listed that may become payable by the purchaser on completion.

View Larger Map

Disclaimer: The map preview provided above is for general guidance only and may not accurately reflect the exact location or surrounding buildings. Prospective buyers and interested parties are strongly advised to independently verify the precise location and surroundings before bidding.