Withdrawn | Lot 6

Plot 5 North End Drive, Gerrards Lane, Liverpool, Merseyside, L26 5QA

Withdrawn

  • Land
  • Tenure: See Legal Pack

Call the team on 01772 772450 for more information

Auction Date

Thu 13/08/2020

Auction Time

09:24

Auction Venue

Online Auction Online Auction,

CATALOGUE HEADING Residential Building Plot With Permission For Luxury 5 Bed Detached House

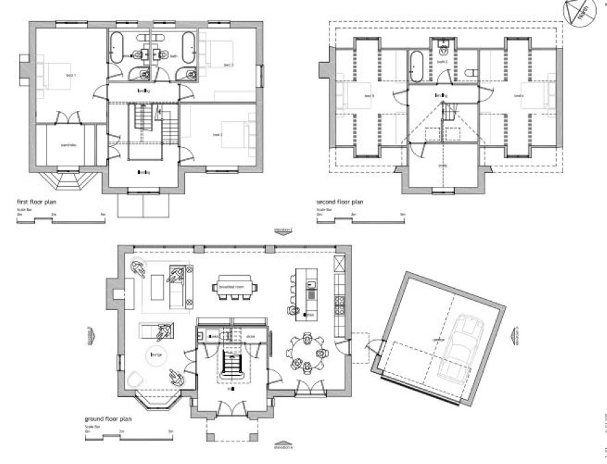
Residential Building Plot with planning consent granted December 2018 (ref 18/00631/FUL – Knowsley BC) for 5 bed (3 bath) detached luxury residence with double garage and front and rear gardens. Once constructed the house has been designed to provide the following accommodation:- Ground Floor - attractive entrance hall, open plan kitchen/breakfast room & lounge incorporating feature glazing. The first floor comprises Master bedroom with walk-in wardrobe and en-suite, with a further two good size bedrooms and a family bathroom. The second floor has a further two bedrooms, a second family bathroom and a study. Outside caters for a generous front & rear gardens and driveway leading to double garage. Currently the foundations for the house and garage have been constructed. Location The plot occupies a semi-rural location at the junction of North End Lane.

Tenure

See Legal Pack

Energy Efficiency Rating (EPC)

Current Rating N/A

Local Authority

Liverpool City Council

Important Notice to Prospective Buyers:

We draw your attention to the Special Conditions of Sale within the Legal Pack, referring to other charges in addition to the purchase price which may become payable. Such costs may include Search Fees, reimbursement of Sellers costs and Legal Fees, and Transfer Fees amongst others.

Additional Fees

Administration Charge - 1.2% inc VAT of the purchase price, subject to a minimum of £1200 inc VAT, payable on exchange of contracts.

Disbursements - Please see the legal pack for any disbursements listed that may become payable by the purchaser on completion.

View Larger Map

Disclaimer: The map preview provided above is for general guidance only and may not accurately reflect the exact location or surrounding buildings. Prospective buyers and interested parties are strongly advised to independently verify the precise location and surroundings before bidding.