For Sale By Auction | 09:24, 13 August 2020 | Lot 13

Development Site 48 Shudehill & Salmon Street, Northern Quarter, Manchester, Greater Manchester, M4 4AA

Sold £472,000

  • Residential Development
  • Tenure: See Legal Pack

Call the team on 01772 772450 for more information

Auction Date

Thu 13/08/2020

Auction Time

09:24

Auction Venue

Online Auction Online Auction,

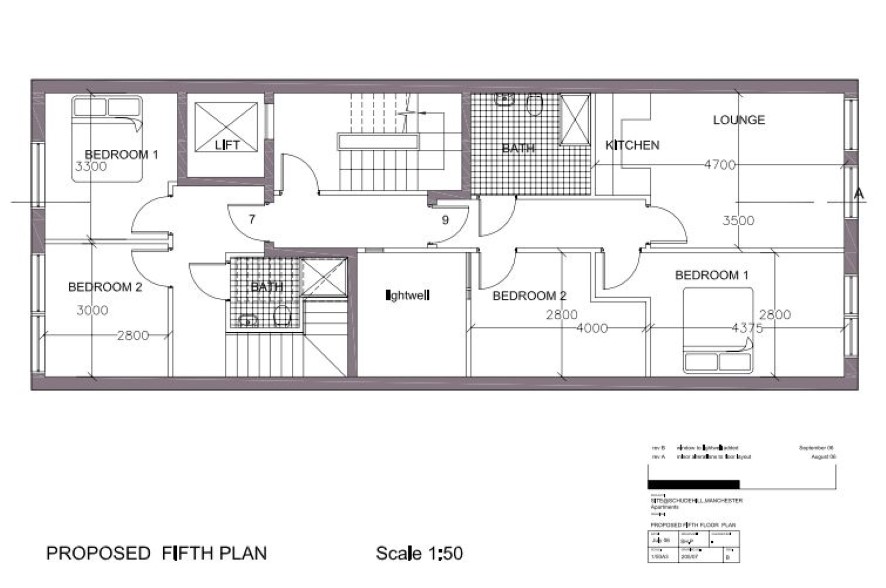
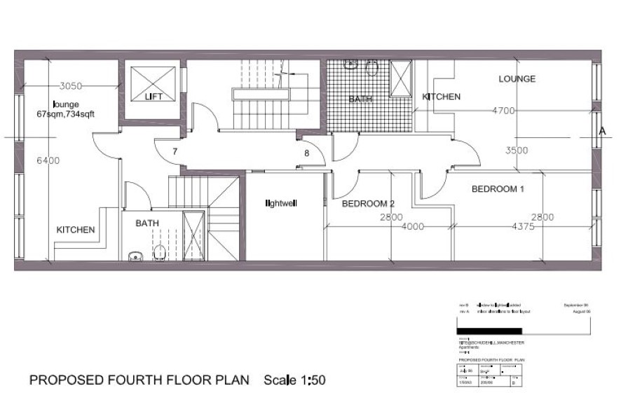
Prime City Centre Development Site - Lapsed Consent For 9 x Apartments Plus Retail Unit

Prime development site situated fronting Shudehill and backing onto Salmon Street in the Northern Quarter area of Manchester City Centre. The site is considered suitable for development with lapsed planning permission (Application Ref: 080087/FO/2006/C1, dated January 2007 which has now expired), for the erection of a six storey building comprising 9 apartments (six 2 bed apartments and three 1 bed apartments) plus a ground floor retail unit and basement. The site currently generates income of £400 per month. The tenant occupies under the terms of a four month licence which commenced 1 July 2020, outside of the Landlord and Tenant Act 1954. The site also generates income from providing access for a company to paint advertising murals on the wall of the adjacent building. This is under an informal arrangement, approx 6 murals per year @ £1,250 each for access. Please refer to legal pack for full details. The site fronts Shudehill opposite the transport interchange (tram stop) and spans back to Salmon Street to the rear and is ideally located close to all City Centre amenities, including the Crowne Plaza and Holiday Inn hotels, and the Arndale Shopping Centre. Nearby entertainment and leisure destinations include the Printworks, the National Football Museum, Mackie Mayors and the Frog & Bucket. Bidders are advised to make their own site inspection and enquiries with the Council’s planning department to satisfy themselves that a proposed scheme can be designed within the ownership boundaries of the land which is believed to be 6.493 metres in width.

Tenure

See Legal Pack

Energy Efficiency Rating (EPC)

Current Rating n/a

Local Authority

Manchester City Council

Important Notice to Prospective Buyers:

We draw your attention to the Special Conditions of Sale within the Legal Pack, referring to other charges in addition to the purchase price which may become payable. Such costs may include Search Fees, reimbursement of Sellers costs and Legal Fees, and Transfer Fees amongst others.

Additional Fees

Administration Charge - 1.8% inc VAT of the purchase price payable on exchange of contracts.

Disbursements - Please see the legal pack for any disbursements listed that may become payable by the purchaser on completion.

View Larger Map

Disclaimer: The map preview provided above is for general guidance only and may not accurately reflect the exact location or surrounding buildings. Prospective buyers and interested parties are strongly advised to independently verify the precise location and surroundings before bidding.