For Sale By Auction | 09:24, 13 August 2020 | Lot 30

Former Amber Banks Care Home, 53-55 Clifton Drive, Blackpool, Lancashire, FY4 1NT

Sold £372,000

  • Commercial Property
  • Tenure: See Legal Pack

Call the team on 01772 772450 for more information

Auction Date

Thu 13/08/2020

Auction Time

09:24

Auction Venue

Online Auction Online Auction,

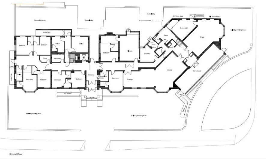
Substantial Three Storey Former Care Home - Requires Refurbishment - Considered Suitable For Residential Conversion / Development (STP)

Description Substantial three storey former care home which now requires refurbishment and/or renovation. The property occupies a prominent corner plot with off-road parking to the front and side. Considered suitable for conversion to residential or hotel accommodation subject to the required consents being obtained. According to EPC the property extends to approximately 1,269 m2 / 13,660 sqft. Location Fronting Clifton Drive at the junction of Wimbourne Place in Blackpools South Shore close to The Pleasure Beach and South Promenade. All interested parties are to satisfy themselves with the relevant authorities in regard to their intended use.

Tenure

See Legal Pack

Energy Efficiency Rating (EPC)

Current Rating C

Local Authority

Blackpool Borough Council

Important Notice to Prospective Buyers:

We draw your attention to the Special Conditions of Sale within the Legal Pack, referring to other charges in addition to the purchase price which may become payable. Such costs may include Search Fees, reimbursement of Sellers costs and Legal Fees, and Transfer Fees amongst others.

Additional Fees

Administration Charge - 1.2% inc VAT of the purchase price, subject to a minimum of £1200 inc VAT, payable on exchange of contracts.

Disbursements - Please see the legal pack for any disbursements listed that may become payable by the purchaser on completion.

View Larger Map

Disclaimer: The map preview provided above is for general guidance only and may not accurately reflect the exact location or surrounding buildings. Prospective buyers and interested parties are strongly advised to independently verify the precise location and surroundings before bidding.