For Sale By Auction | 13:00, 15 October 2020 | Lot U/S 14

Apartment 143 Tempus Tower, 9 Mirabel Street, Manchester, Greater Manchester, M3 1NP

*Guide | £320,000 (plus fees)

  • Penthouse
  • 2 Bedrooms
  • Tenure: See Legal Pack

Call the team on 01772 772450 for more information

Auction Date

Thu 15/10/2020

Auction Time

13:00

Auction Venue

Online Auction Online Auction,

Stunning Two Bedroom Penthouse Apartment In Central Manchester

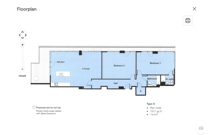
Truly beautiful 19th Floor apartment in Tempus tower, located just off Deansgate. With over 1500 sq ft of accommodation, this highly spacious city centre pad benefits from floor to ceiling windows on a corner aspect with unrivalled city centre views, extensive roof terrace, air conditioning throughout and two secure underground allocated parking spaces. The Apartment Comprises Of Hall, two double bedrooms, one with en suite shower room, additional bathroom off hallway and open plan living and kitchen area with access to the roof terrace. On site concierge and there is a secure allocated parking spaces. Viewing is strongly recommended.

Tenure

See Legal Pack

Energy Efficiency Rating (EPC)

Current Rating Ordered

Local Authority

Manchester City Council

Important Notice to Prospective Buyers:

We draw your attention to the Special Conditions of Sale within the Legal Pack, referring to other charges in addition to the purchase price which may become payable. Such costs may include Search Fees, reimbursement of Sellers costs and Legal Fees, and Transfer Fees amongst others.

Additional Fees

Administration Charge - 1.5% inc VAT of the purchase price, subject to a minimum of £1500 inc VAT, payable on exchange of contracts.

Disbursements - Please see the legal pack for any disbursements listed that may become payable by the purchaser on completion.

View Larger Map

Disclaimer: The map preview provided above is for general guidance only and may not accurately reflect the exact location or surrounding buildings. Prospective buyers and interested parties are strongly advised to independently verify the precise location and surroundings before bidding.