Postponed | Lot 19

Workshop Unit, Back Clarendon Road, r/o 29 Clarendon Road, Blackpool, Lancashire, FY1 6EF

Postponed

  • Commercial Property
  • Tenure: See Legal Pack

Call the team on 01772 772450 for more information

Auction Date

Thu 20/01/2022

Auction Time

12:00

Auction Venue

Online Auction Online Auction,

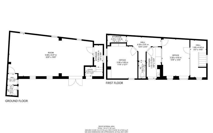
Vacant Detached Workshop Unit With Offices Approximately 1,181 SQ Ft Plus Small Yard

Two storey detached workshop unit with small yard area to the side. Internally the unit briefly comprises ground floor open plan workshop accessed via double doors with WC. There is separate access to the first floor which provides two offices, kitchen, store and WC. Externally there is a small yard area to the side. Location Located to the rear of 29 Clarendon Road accessed via a side road, Back Clarendon Road accessed off Lytham Road B5262 close to Blackpool Football Club, approximately ½ mile south of the town centre. Please refer to legal pack for additional fees and the Auction Information document for guidance prior to bidding. Any purchasers choosing to buy without viewing in person are doing so at their own risk and acknowledge that the auctioneer will not be held responsible for any issues that may arise due to them being unintentionally missed from the video or sales particulars.

Tenure

See Legal Pack

Energy Efficiency Rating (EPC)

Current Rating To Follow

Local Authority

Blackpool Borough Council

Important Notice to Prospective Buyers:

We draw your attention to the Special Conditions of Sale within the Legal Pack, referring to other charges in addition to the purchase price which may become payable. Such costs may include Search Fees, reimbursement of Sellers costs and Legal Fees, and Transfer Fees amongst others.

Additional Fees

Buyer's Premium - £900 inc VAT payable on exchange of contracts.

Administration Charge - 1.5% inc VAT of the purchase price, subject to a minimum of £1500 inc VAT, payable on exchange of contracts.

Disbursements - Please see the legal pack for any disbursements listed that may become payable by the purchaser on completion.

View Larger Map

Disclaimer: The map preview provided above is for general guidance only and may not accurately reflect the exact location or surrounding buildings. Prospective buyers and interested parties are strongly advised to independently verify the precise location and surroundings before bidding.