Sold Prior | Lot 28

Ho Lee Chow, Rotten Row, Southport, Merseyside PR8 2BZ

Sold Prior

  • Restaurant
  • Tenure: Leasehold

Call the team on 01772 772450 for more information

Auction Date

Thu 15/09/2022

Auction Time

12:00

Auction Venue

Online Auction

Viewing Times:

Thu 8 Sep

13:30-14:00

Tue 13 Sep

15:30-16:00

Detached Former Restaurant With Car Park

Description Well-appointed and ready to trade licensed restaurant and bar premises. Optional usage of “cafe” coffee shop, tearoom. Floor for dining and kitchen facilities. We have been advised the lease also allows the premises to be used as offices in addition to hospitality. Location The property is situated exclusively on the edge of the famous Victoria Park, on Rotten Row. Victoria Park exclusively hosts high profile events such as the annual Flower Show, British Fireworks Championships, Open Air Movie Showings. Rotten Row contains various high quality residential developments and situation is approximately half a mile from Lord Street, near Southport town centre. 99 year lease from 1994. Rent - £13,800 per annum, next rent review 2024. Annual rent is for building and customer car park. Every effort has been made to confirm the accuracy of the lot details including any defect in the title both with the vendor and their solicitor. Auction House will not be held responsible for any failure to disclose any such defects. Any purchasers choosing to buy without viewing in person are doing so at their own risk and acknowledge that the auctioneer will not be held responsible for any issues that may arise due to them being unintentionally missed from the video or sales particulars. Please refer to legal pack for additional fees and the Auction Information document for guidance prior to bidding.

Tenure

Leasehold

Accommodation

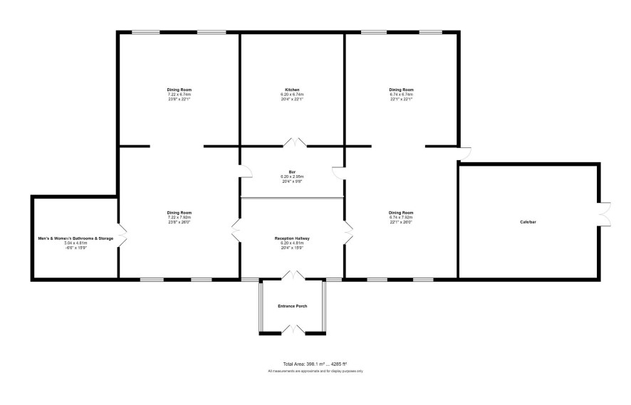
The floor areas as taken from VOA are as follows… Ground Floor Restaurant 391.2 m2 / 4,210.8 sq.ft. Ground Floor Internal storage 109.7 m2 / 1,180.8 sq.ft. Ground Floor External storage 14.2 m2 / 152.8 sq.ft Total 515.1 m2 / 5,544.4 sq.ft

Energy Efficiency Rating (EPC)

Current Rating C

Local Authority

Sefton Council

Solicitors

Ormroads Solictors & Advocates Ltd, Ref: Laura Ball, Tel: 01253 850777

Important Notice to Prospective Buyers:

We draw your attention to the Special Conditions of Sale within the Legal Pack, referring to other charges in addition to the purchase price which may become payable. Such costs may include Search Fees, reimbursement of Sellers costs and Legal Fees, and Transfer Fees amongst others.

Additional Fees

Administration Charge - 1.75% inc VAT of the purchase price, subject to a minimum of £1750 inc VAT, payable on exchange of contracts.

Disbursements - Please see the legal pack for any disbursements listed that may become payable by the purchaser on completion.

View Larger Map

Disclaimer: The map preview provided above is for general guidance only and may not accurately reflect the exact location or surrounding buildings. Prospective buyers and interested parties are strongly advised to independently verify the precise location and surroundings before bidding.