Sold Prior | Lot 43

Chatham Mill, Chester Street, Manchester, Greater Manchester M1 5QF

Sold Prior

  • Commercial Development
  • Tenure: Freehold

Call the team on 01772 772450 for more information

Auction Date

Thu 23/03/2023

Auction Time

12:00

Auction Venue

Online Auction

Unique City Centre Income Producing Mill Building extending to 6,601 Sq M / 71,049 Sq Ft. The Gross Internal Area of the property excluding the areas subject to long leases is 37,794 square feet. Gross Passing Rent of £212,574 per annum (as of October 2022). Development Potential (STP)

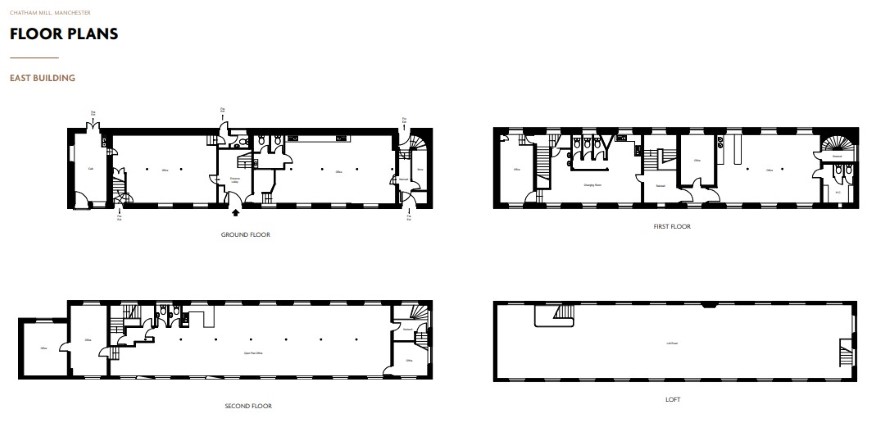
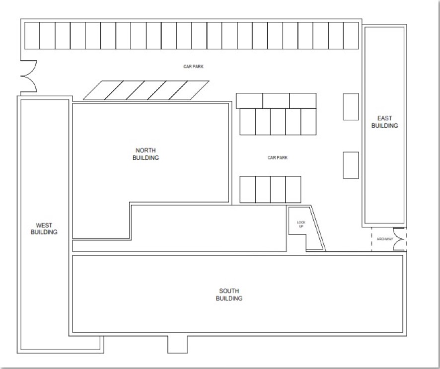
THE OPPORTUNITY TO PURCHASE THE FREEHOLD IN CHATHAM MILL, WHICH COMPRISES THE FOLLOWING: — The 3rd & 4th floor of South Block, comprising 13,617 sq ft of office accommodation let to a number of independent occupiers under short term agreements — The 5th & 6th floor of South Block, comprising 11,023 sq ft of vacant floorspace in need of refurbishment — The whole of the vacant East Wing comprising 8,504 sq ft of floorspace most recently in office use — The ground floor of the North Block comprising 4,650 sq ft of industrial accommodation with live planning consent for conversion to offices — Car park with 44 spaces — The long leasehold interests & opportunities to regear these leases. — Redevelopment opportunities STP & listed building approval. The property comprises a Grade II Listed period mill building constructed over four blocks in a general ‘U’ shape arrangement fronting Chester Street, Lower Ormond Street & Lower Chatham Street. We understand that the Mill dates from 1820. SOUTH BLOCK • Six storey block extending to c.45,000 sq ft. • The property comprises office accommodation with vacant 5th & 6th floors. • The roof of the South Block is in need of replacement. EAST WING • Four storey block extending to c.8,500 sq ft. • The property is fully vacant & has recently been used as site offices for a contractor. WEST WING • Two storey block extending to c.4,700 square feet. • The property comprises light industrial / storage space. NORTH BLOCK • Three storey block extending to c.12,600 sq ft. • The ground floor comprises light industrial / storage space with offices in the upper floors. CAR PARKING • Communal car park courtyard area with some off-street spaces to front of South Block, providing 56 parking spaces (there are 12 spaces sold off with the long leaseholds). There are the following long leasehold interests across the property: • Ground floor of South Block pursuant to a 99-year lease dated 12/3/87 (64 years unexpired) • First floor of South Block and North Block pursuant to a 999-year lease from 14/4/83 • Second floor of South Block and North Block pursuant to a 999-year lease from 24/6/82 •Whole of the West Wing pursuant to a 99-year lease dated 30/9/83 (60 years unexpired) • 12 car parking spaces are allocated to the long leaseholders The long leasehold of the West Wing is also to be offered in this auction by way of a separate lot.

Tenure

Freehold

TENANCY INFORMATION

The property is let to a number of independent occupiers under short term license agreements. The property currently produces a gross passing rent of £212,574 per annum inclusive of costs, service charge, insurance and management. For the period of 1st February 2022 to 31st October 2022, the management costs for the property equated to £75,345. On a pro-rata basis, this equates to an annual management cost of £100,460. This would indicate a net passing rent in the region of £112,115 per annum. These figures have not been verified. We are advised that the property had a gross rental income of £310,620 in the 2020 calendar year, but we have not independently verified this figure. If correct, then there is the potential to increase the net income to over £200,000. Please refer to the tenancy and cost schedule in the legal pack which shows a breakdown of the current tenancy position at the property with correlating floorplans.

GROSS INTERNAL FLOOR AREAS

South Block Ground Floor - Long leasehold (>65 years unexpired) - 636 Sq M / 6,850 Sq Ft First Floor - Long leasehold - 636 Sq M / 6,850 Sq Ft Second Floor - Long leasehold - 636 Sq M / 6,850 Sq Ft Third Floor * - Freehold - Tenanted - 633 Sq M / 6,814 Sq Ft Fourth Floor * - Freehold - Tenanted - 632 Sq M / 6,803 Sq Ft Fifth Floor * - Freehold - Vacant - 641 Sq M / 6,900 Sq Ft Loft (Excludes Eaves Areas) * - Freehold - Vacant – 383 Sq M / 4,123 Sq Ft South Block GIA - 4,198 Sq M / 45,189 Sq Ft East Wing Ground Floor * - Freehold - Vacant - 186 Sq M / 2,002 Sq Ft First Floor * - Freehold - Vacant - 186 Sq M / 2,002 Sq Ft Second Floor * - Freehold - Vacant - 215 Sq M / 2,314 Sq Ft Loft * - Freehold - Vacant - 203 Sq M / 2,185 Sq Ft East Wing GIA - 790 Sq M / 8,504 Sq Ft North Block Ground Floor, inc Boiler House * - Freehold – Part vacant / Part tenanted - 432 Sq M / 4,650 Sq Ft First Floor - Long leasehold - 371 Sq M / 3,993 Sq Ft Second Floor - Long leasehold - 371 Sq M / 3,993 Sq Ft North Block GIA - 1,174 Sq M / 12,636 Sq Ft West Wing Ground Floor - Leasehold - Vacant -307 Sq M / 3,302 Sq Ft First Floor - Leasehold - Vacant 132 - Sq M / 1,418 Sq Ft West Wing GIA - 439 Sq M / 4,720 Sq Ft TOTAL - 6,601 Sq M / 71,049 Sq Ft The above shows the Gross Internal Areas of the total property. * show areas which are not subject to long leaseholds. The Gross Internal Area of the property excluding the areas subject to leases is 37,793 square feet.

PLANNING

There is a live planning consent granted in March 2021 (ref: 128758/FO/2020) for the change of use of the ground floor of the North Block from Use Class B8 (storage and distribution) to Use Class E (office use). The West Wing was granted listed building consent in June 2000 (ref: 059558/LO/CITY3/00) for the conversion into 9no. residential apartments and extension to form a further 8no. new build apartments. Further planning information is available in the legal pack and on the Manchester City Council planning portal.

SERVICE CHARGE & VAT

The current owner has gained full legal control of building in January 2022. The current owner has begun to implement service contracts associated with the management of the building. We understand there has been a history of service charge but have no means to verify this. We understand that the long leaseholders demised to the South Block are obligated to contribute towards the service charge including any repair works to the roof. Perspective purchasers are advised to undertake their own due diligence regarding this point. We understand that the property is not elected for VAT

TENURE

• GM465895 - Herondive Limited - South Block, Ground Floor 99 years from 12th March 1987 (63 yrs unexpired) Rent £20 pa - Operated as offices • GM312690 - B&S Investments (Manchester) Limited - North Block, First Floor & South Block, First Floor – 999 years from 14th April 1983 - Rent £20 pa - Operated as offices. • GM278243 Klein Property Holdings Ltd - North Block, Second Floor & South Block, Second Floor - 999 years from 24th June 1982 – Rent £20 - Operated as offices. • GM334685 – Danebridge Engineering Company Limited – West Wing - 99 years from 30th September 1983 (60 yrs unexpired) Rent £20 pa - Operated as storage

FURTHER INFORMATION

Please refer to further sales particulars contained with the legal pack.

AUCTION INFORMATION

Finance is available on this lot. For a decision-in-principle visit togethermoney.com/amydip/ ANTI-MONEY LAUNDERING REGULATIONS In accordance with Anti-Money Laundering Regulations, two forms of identification and confirmation of the source of funding will be required from the successful purchaser. Every effort has been made to confirm the accuracy of the lot details including any defect in the title both with the vendor and their solicitor. Auction House will not be held responsible for any failure to disclose any such defects. Any purchasers choosing to buy without viewing in person are doing so at their own risk and acknowledge that the auctioneer will not be held responsible for any issues that may arise due to them being unintentionally missed from the video or sales particulars. Please refer to legal pack for additional fees and the Auction Information document for guidance prior to bidding.

Energy Efficiency Rating (EPC)

Current Rating E, D, D, D, D,

Local Authority

Manchester City Council

Solicitors

Slater Heelis, Ref: Richard Bradbury

Offered in association with

Roger Hannah

Important Notice to Prospective Buyers:

We draw your attention to the Special Conditions of Sale within the Legal Pack, referring to other charges in addition to the purchase price which may become payable. Such costs may include Search Fees, reimbursement of Sellers costs and Legal Fees, and Transfer Fees amongst others.

Additional Fees

Administration Charge - 1.75% inc VAT of the purchase price, subject to a minimum of £1750 inc VAT, payable on exchange of contracts.

Disbursements - Please see the legal pack for any disbursements listed that may become payable by the purchaser on completion.

View Larger Map

Disclaimer: The map preview provided above is for general guidance only and may not accurately reflect the exact location or surrounding buildings. Prospective buyers and interested parties are strongly advised to independently verify the precise location and surroundings before bidding.