Withdrawn | Lot 51

Heywood Hall, Bolton Road, Pendlebury, Swinton, Manchester, Greater Manchester M27 8UX

Withdrawn

  • Office
  • Tenure: Freehold

Call the team on 01772 772450 for more information

Auction Date

Thu 23/03/2023

Auction Time

12:00

Auction Venue

Online Auction

Detached Period Office Building Approximately 5,732 SQFT (532.5 m2) With Car Park – May Suit Alt. Uses (STP)

Heywood Hall is a Grade II Listed Property which comprises a former school house dating back to the late 1800s now converted into office use. The property once sat within the grounds of St Augustine's Church, positioned just 100ft from the subject property. Heywood Hall is of structural brick construction with missionary windows and decorative stone detailing contained beneath a pitched clay tiled roof with a feature single steeple. The building was remodelled and converted into office space in 1998 and is predominantly contained over two storeys with mezzanine areas. Fenestration throughout are generally of timber frame with a combination of single and double glazing whilst rainwater goods are generally metal fittings. Location The property is situated on Bolton Street (A666) adjacent to St Augustine’s Church and Primary School within the Pendlebury / Swinton District of the City of Salford, Manchester City Centre being approximately 4 miles to the east. Vehicular access is via Moorcock Avenue, a small residential cul-de-sac off Bolton Street. Business Rates Rateable Value: £36,250 Rates Payable: £18,088.75 Tenure: Freehold :Title number: GM785084 Finance is available on this lot. For a decision-in-principle visit togethermoney.com/amydip/ ANTI-MONEY LAUNDERING REGULATIONS In accordance with Anti-Money Laundering Regulations, two forms of identification and confirmation of the source of funding will be required from the successful purchaser. Every effort has been made to confirm the accuracy of the lot details including any defect in the title both with the vendor and their solicitor. Auction House will not be held responsible for any failure to disclose any such defects. Any purchasers choosing to buy without viewing in person are doing so at their own risk and acknowledge that the auctioneer will not be held responsible for any issues that may arise due to them being unintentionally missed from the video or sales particulars. Please refer to legal pack for additional fees and the Auction Information document for guidance prior to bidding.

Tenure

Freehold

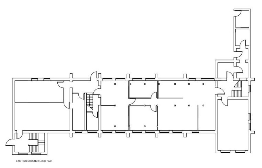
Ground Floor

Internally the ground floor comprises an entrance hall with reception area, open plan office with glass partitioned meeting room, two further offices, archive/Comms room and boiler room. There is also a staff kitchen and male, female and disabled WC facilities. Additionally, there is an external brick-built store accessed from a small rear courtyard.

First Floor

Much of the first floor level forms part of the old Church Hall and is built on a steel frame, connecting to original upper floor levels on either side. The upper levels are accessed via three staircases one from the entrance and one at either end of the building. At first floor level is a large, open plan office with exposed roof trusses, that spans much of the building. Additionally, there is a smaller office / store and a board room to the front. Finally, there are two offices on mezzanine levels.

External

Externally, there is a large, enclosed and surfaced car park which is providing parking for circa 15 vehicles accessed via Moorcock Avenue. There is also a garden area to the front of the building fronting Bolton Road. The property is located within an area which is allocated within a Conservation Area.

Floor Area

The following floor areas have been taken form VOA:- Net internal Floor Area - 532.49 M2 / 5,732 SQ.FT. The property extends to 0.31 acres (0.126 hectares) and occupies 50% site cover.

Energy Efficiency Rating (EPC)

Current Rating F

Local Authority

Salford City Council

Solicitors

Fieldings Porter, Ref: Fieldings Porter

Important Notice to Prospective Buyers:

We draw your attention to the Special Conditions of Sale within the Legal Pack, referring to other charges in addition to the purchase price which may become payable. Such costs may include Search Fees, reimbursement of Sellers costs and Legal Fees, and Transfer Fees amongst others.

Additional Fees

Buyer's Premium - £2400 inc VAT payable on exchange of contracts.

Administration Charge - 1.8% inc VAT of the purchase price, subject to a minimum of £1800 inc VAT, payable on exchange of contracts.

Disbursements - Please see the legal pack for any disbursements listed that may become payable by the purchaser on completion.

View Larger Map

Disclaimer: The map preview provided above is for general guidance only and may not accurately reflect the exact location or surrounding buildings. Prospective buyers and interested parties are strongly advised to independently verify the precise location and surroundings before bidding.