Withdrawn | Lot 38

10 Church Street, Southport, Merseyside PR9 0QT

Withdrawn

  • Detached House
  • 10 Bedrooms

Call the team on 01772 772450 for more information

Auction Date

Thu 20/07/2023

Auction Time

12:00

Auction Venue

Online Auction

Viewing Times:

Wed 14 Jun

10:30-11:30

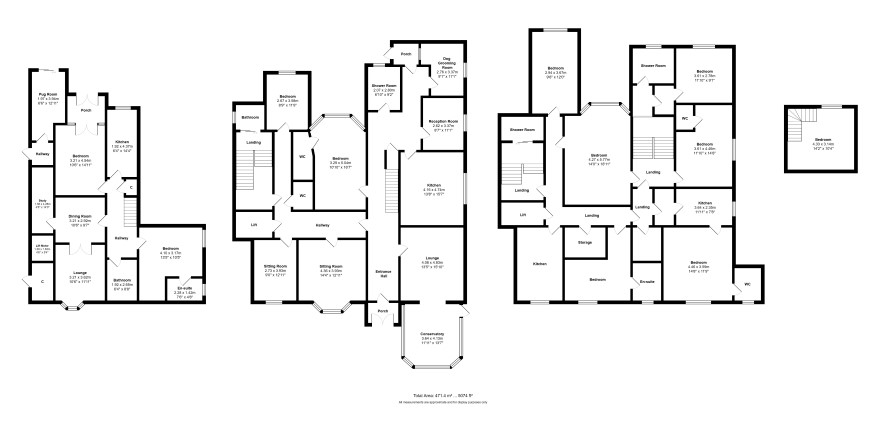
Ten Bedroom Detached Property

Ten bedroom detached property previously used as residential home. The property spans over four floors and would be suitable for multiple uses dependent upon required permissions. Positioned close to shops, bars and restaurants and is perfectly located for schools, colleges and the railway station. There is parking to the front of the property and a garden with several outbuildings to the rear. Tenure: Freehold Title number:MS42755 Council Tax Band : D Finance is available on this lot. For a decision-in-principle visit togethermoney.com/amydip/ ANTI-MONEY LAUNDERING REGULATIONS In accordance with Anti-Money Laundering Regulations, two forms of identification and confirmation of the source of funding will be required from the successful purchaser. Every effort has been made to confirm the accuracy of the lot details including any defect in the title both with the vendor and their solicitor. Auction House will not be held responsible for any failure to disclose any such defects. Any purchasers choosing to buy without viewing in person are doing so at their own risk and acknowledge that the auctioneer will not be held responsible for any issues that may arise due to them being unintentionally missed from the video or sales particulars. Please refer to legal pack for additional fees and the Auction Information document for guidance prior to bidding.

Energy Efficiency Rating (EPC)

Current Rating G

Local Authority

Sefton Council

Solicitors

Birchall Blackburn Law, Ref: Jane Lockwood, Tel: 01772 552187

Offered in association with

Flexi Agent

Important Notice to Prospective Buyers:

We draw your attention to the Special Conditions of Sale within the Legal Pack, referring to other charges in addition to the purchase price which may become payable. Such costs may include Search Fees, reimbursement of Sellers costs and Legal Fees, and Transfer Fees amongst others.

Additional Fees

Administration Charge - 1.8% inc VAT of the purchase price, subject to a minimum of £1800 inc VAT, payable on exchange of contracts.

Disbursements - Please see the legal pack for any disbursements listed that may become payable by the purchaser on completion.

View Larger Map

Disclaimer: The map preview provided above is for general guidance only and may not accurately reflect the exact location or surrounding buildings. Prospective buyers and interested parties are strongly advised to independently verify the precise location and surroundings before bidding.