Sold Prior | Lot 26

Sherbrooke Hall Farm, High Stile Lane, Dobcross, Oldham, Greater Manchester OL3 5JR

Sold Prior

  • Farm House
  • Tenure: Freehold

Call the team on 01772 772450 for more information

Auction Date

Wed 17/07/2024

Auction Time

12:00

Auction Venue

Online Auction

Farmhouse with Stables, Paddock & Flats set on 18 Acres of Green Belt Land

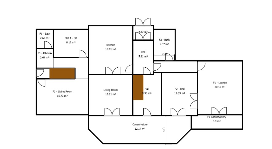
This unique farmhouse and equestrian complex is set within approx. 18 acres of Green Belt land which may have potential future development subject to relevant planning permission. The property is in need of renovation and updates but is also filled with plenty of character and original features. Benefiting from the main farmhouse (built in 1819) which comprises of three bedrooms along with two (one bedroom) apartments to either side, plus a detached stables barn building consisting of three (one bedroom) self-contained flats and 12 stables with plenty of hay storage within the roof space. There is also a paddock to side of the stables and 2 triple garages to the front of the main farmhouse. Located in the popular village of Dobcross surrounded by countryside, this property has plenty of opportunities and potential to be a beautiful countryside farmhouse. The property is supplied by mains gas, electric, water and sewage. With a gas fuel Aga and double glazed windows. Tenure: Freehold Title number: GM630363, GM699494, GM807777 & GM843226 Council Tax Band: H Local Authority: Oldham Finance is available on this lot. For a decision-in-principle visit togethermoney.com/amydip

Tenure

Freehold

Main House

The ground floor comprises of a sun room, hallway, living room and kitchen/diner and a lean to at the rear (utility area) along with stairs leading up to the first floor. There is also internal access into both flat 1 and 3. To the first floor there are three bedrooms, bathroom and an open plan kitchen/living room. Access is also available internally to flat 4. Via the first floor, there are also stairs which lead to the second floor of this property which is currently being used as a storage area but has previous been set out and shared accommodation with several rooms and a kitchen. There are then 3 sets of stairs which lead up to three separate mezzanine levels offering ensuite bedrooms. Extension to left of property: this extension to the original house was added in approx. 2014 where there are 2 self contained one bedroom apartments.

Flat One

One bedroom ground floor apartment comprising of a living room, kitchen, bedroom and shower room.

Flat Two

One bedroom first floor apartment comprising of a living room with mezzanine level, kitchen, bedroom and shower room. Extension to the right of the property: This was also added at a later date than the original main house and comprises of 2 one bedroom apartments.

Flat Three

This can be accessed from the conservatory entrance of the main house as well as the main house hallway. Comprises of an open plan kitchen/living room, bedroom and bathroom.

Flat Four

Private access is given to the rear of the property along with internal access through the main house on the first floor. Comprising of an open plan kitchen/living room with a mezzanine above, office and shower room.

Stable Block

Benefitting from 12 stables along with roof space and hay storage. There are also three individual one bedroom flats.

Flat One

Residing to the ground floor with its own private entrance there is an open plan kitchen/living room, bedroom and bathroom.

Flat Two

Residing to the first floor, this one bedroom flat comprises of a kitchen/diner, separate living room, bedroom and shower room.

Flat Three

Also located on the first floor, this one bedroom flat comprises of a kitchen/diner, separate living room, bedroom and a bathroom.

Stables

Offering 12 stable bays, there is plenty of storage space within the roof space accessed via stairs to either side of the barn which could potentially be converted subject to relevant planning permissions. There are also hay stores within.

Energy Efficiency Rating (EPC)

Current Rating tbc

Local Authority

Oldham Metropolitan Borough Council

Solicitors

Harold Stock, Ref: Harold Stock

Important Notice to Prospective Buyers:

We draw your attention to the Special Conditions of Sale within the Legal Pack, referring to other charges in addition to the purchase price which may become payable. Such costs may include Search Fees, reimbursement of Sellers costs and Legal Fees, and Transfer Fees amongst others.

Additional Fees

Administration Charge - 1.98% inc VAT of the purchase price, subject to a minimum of £1980 inc VAT, payable on exchange of contracts.

Disbursements - Please see the legal pack for any disbursements listed that may become payable by the purchaser on completion.

View Larger Map

Disclaimer: The map preview provided above is for general guidance only and may not accurately reflect the exact location or surrounding buildings. Prospective buyers and interested parties are strongly advised to independently verify the precise location and surroundings before bidding.