For Sale By Auction | 12:00, 13 November 2024 | Lot 63

Land at Rigby Lane, Bolton, Lancashire BL2 3EQ

Sold £16,000

  • Land
  • Tenure: Freehold

Call the team on 01772 772450 for more information

Auction Date

Wed 13/11/2024

Auction Time

12:00

Auction Venue

Online Auction

Two Freehold Plots of Land

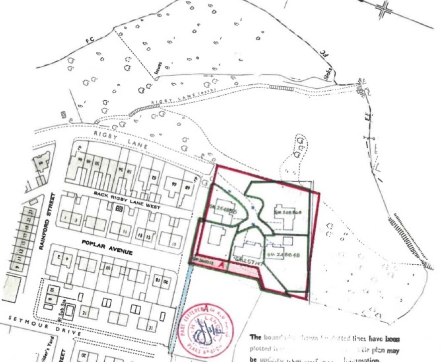
Two freehold plots of land situated off Rigby Lane in the Bradshaw/South Turton area north of Bolton. Firstly, approximately 3.47 acres of land predominantly to the west of Rigby Lane briefly comprises an area of woodland with an adjacent stream (the buyer must satisfy itself as to boundary extents however the vendor understands that the stream falls outside of the Property extent) . We are informed that the vendor has a verbal agreement with a local angling club who fish in the stream/river and permit the club access to the Property and allow them to maintain parts of the Property which includes managing Himalayan Balsam. Secondly, plot of land situated at the head of Rigby Lane which briefly comprises the residue of a site which has been developed for 5 detached houses (all sold off). All interested parties are advised to consult with the local planning department prior to bidding. Tenure: Freehold Title number: GM156713 & GM203875 Local Authority: Bolton Council Finance is available on this lot. For a decision-in-principle visit togethermoney.com/amydip/

Tenure

Freehold

IMPORTANT INFORMATION

Buying at auction is a contractual commitment, you are legally obliged to buy the lot on the terms of the sale memorandum at the price you bid. If you are the successful bidder, you are required to pay the deposit and auction fees immediately. As agent for the seller, we treat any failure to satisfy your obligations as your repudiation of the contract and the seller may then have a claim against you for breach of contract. You must not bid unless you wish to be bound by the common conditions of auction.

ANTI-MONEY LAUNDERING REGULATIONS

In accordance with Anti-Money Laundering Regulations, two forms of identification and confirmation of the source of funding will be required from the successful purchaser. Every effort has been made to confirm the accuracy of the lot details including any defect in the title both with the vendor and their solicitor. Auction House will not be held responsible for any failure to disclose any such defects. Any purchasers choosing to buy without viewing in person are doing so at their own risk and acknowledge that the auctioneer will not be held responsible for any issues that may arise due to them being unintentionally missed from the video or sales particulars. Please refer to legal pack for additional fees and the Auction Information document for guidance prior to bidding.

Local Authority

Bolton Metropolitan Borough Council

Solicitors

Harrison Drury, 1A Chapel Street, Ref: Harrison Drury, Tel: 01772 258321

Important Notice to Prospective Buyers:

We draw your attention to the Special Conditions of Sale within the Legal Pack, referring to other charges in addition to the purchase price which may become payable. Such costs may include Search Fees, reimbursement of Sellers costs and Legal Fees, and Transfer Fees amongst others.

Additional Fees

Buyer's Premium - £900 inc VAT payable on exchange of contracts.

Administration Charge - 1.98% inc VAT of the purchase price, subject to a minimum of £1980 inc VAT, payable on exchange of contracts.

Disbursements - Please see the legal pack for any disbursements listed that may become payable by the purchaser on completion.

View Larger Map

Disclaimer: The map preview provided above is for general guidance only and may not accurately reflect the exact location or surrounding buildings. Prospective buyers and interested parties are strongly advised to independently verify the precise location and surroundings before bidding.