For Sale By Auction | 12:00, 11 December 2024 | Lot 70

32 Oldham Road, Manchester, Greater Manchester M4 5FE

*Guide | £380,000 (plus fees)

  • Commercial Property
  • Tenure: Leasehold.

Call the team on 01772 772450 for more information

Auction Date

Wed 11/12/2024

Auction Time

12:00

Auction Venue

Online Auction

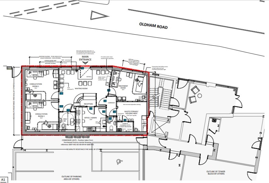
Ground Floor Vacant Commercial Unit – With Parking

Description Modern ground floor self-contained commercial unit situated beneath residential apartments. Previously utilised as a medical centre but considered suitable for a variety of retail, office or commercial uses, subject to the required consents being obtained. Internally the unit is fitted with air-conditioning, suspended ceilings incorporating LED lighting, supplementary electric wall heaters and modern shop frontage. The unit currently extends to approximately 1,267 sqft (117.67 m2) (taken from VOA) and briefly provides waiting room with reception, 3 no. treatment rooms, office, storage, DDA WC and staff WC. To the rear are 3 designated car parking spaces. Location Prominently situated fronting Oldham Road (A62), close to the junction with Great Ancoats Street and Swan Street on the fringe of Manchester City Centre. Tenure: long leasehold Title number: tbc{tab} Council Tax Band : n/a Local Authority: Manchester

Tenure

Leasehold.

IMPORTANT INFORMATION

Buying at auction is a contractual commitment, you are legally obliged to buy the lot on the terms of the sale memorandum at the price you bid. If you are the successful bidder, you are required to pay the deposit and auction fees immediately. As agent for the seller, we treat any failure to satisfy your obligations as your repudiation of the contract and the seller may then have a claim against you for breach of contract. You must not bid unless you wish to be bound by the common conditions of auction. Finance is available on this lot. For a decision-in-principle visit togethermoney.com/amydip

ANTI MONEY LAUNDERING REGULATIONS

In accordance with Anti-Money Laundering Regulations, two forms of identification and confirmation of the source of funding will be required from the successful purchaser. Every effort has been made to confirm the accuracy of the lot details including any defect in the title both with the vendor and their solicitor. Auction House will not be held responsible for any failure to disclose any such defects. Any purchasers choosing to buy without viewing in person are doing so at their own risk and acknowledge that the auctioneer will not be held responsible for any issues that may arise due to them being unintentionally missed from the video or sales particulars. Please refer to legal pack for additional fees and the Auction Information document for guidance prior to bidding.

Energy Efficiency Rating (EPC)

Current Rating B

Local Authority

Manchester City Council

Solicitors

JMW Law, Ref: JMW Law

Important Notice to Prospective Buyers:

We draw your attention to the Special Conditions of Sale within the Legal Pack, referring to other charges in addition to the purchase price which may become payable. Such costs may include Search Fees, reimbursement of Sellers costs and Legal Fees, and Transfer Fees amongst others.

Additional Fees

Administration Charge - 2.5% inc VAT of the purchase price, subject to a minimum of £1980 inc VAT, payable on exchange of contracts.

Disbursements - Please see the legal pack for any disbursements listed that may become payable by the purchaser on completion.

View Larger Map

Disclaimer: The map preview provided above is for general guidance only and may not accurately reflect the exact location or surrounding buildings. Prospective buyers and interested parties are strongly advised to independently verify the precise location and surroundings before bidding.