For Sale By Auction | 12:00, 15 October 2025

13-15 Millgate, Wigan, Greater Manchester WN1 1YB

*Guide | £220,000 (plus fees)

  • Commercial Property
  • Tenure: Freehold

Call the team on 01772 772450 for more information

Auction Date

Wed 15/10/2025

Auction Time

12:00

Auction Venue

Online Auction

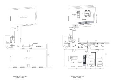
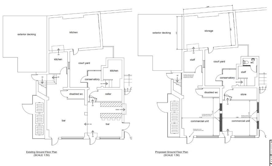
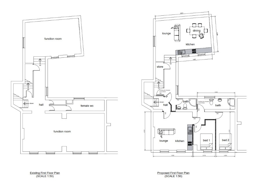
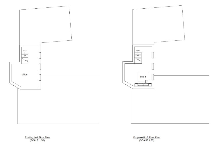
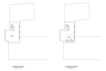
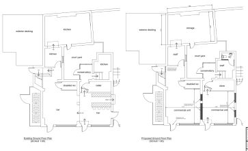
Substantial Bar/Restaurant/Retail Property – Planning Submitted To Convert to 2x Retail Units & 2x Flats

Vacant two storey double fronted bar/restaurant premises with attached two storey barn to the rear. The building benefits from 2x separate entrance doors to the front from Millgate together with a side entrance and rear access. We are informed that the property is located within a conservation area but not listed. The seller has recently submitted plans to convert the property into 2x retail/commercial units with 2x flats to the first and second floors (1x 1 bed & 1 x 2 bed). Located on Millgate close to the main entrance to The Grand Arcade and the junction of Market Place and Standishgate. The surrounding area has recently seen substantial investment including the recently refurbished Capital & Centric Civic Centre and Wigan Life Centre. Tenure: Freehold Title number: GM885490 Local Authority: Wigan Finance is available on this lot. For a decision-in-principle visit togethermoney.com/amydip/

Tenure

Freehold

IMPORTANT INFORMATION

Buying at auction is a contractual commitment, you are legally obliged to buy the lot on the terms of the sale memorandum at the price you bid. If you are the successful bidder, you are required to pay the deposit and auction fees immediately. As agent for the seller, we treat any failure to satisfy your obligations as your repudiation of the contract and the seller may then have a claim against you for breach of contract. You must not bid unless you wish to be bound by the common conditions of auction.

ANTI-MONEY LAUNDERING REGULATIONS

In accordance with Anti-Money Laundering Regulations, two forms of identification and confirmation of the source of funding will be required from the successful purchaser. Every effort has been made to confirm the accuracy of the lot details including any defect in the title both with the vendor and their solicitor. Auction House will not be held responsible for any failure to disclose any such defects. Any purchasers choosing to buy without viewing in person are doing so at their own risk and acknowledge that the auctioneer will not be held responsible for any issues that may arise due to them being unintentionally missed from the video or sales particulars. Please refer to legal pack for additional fees and the Auction Information document for guidance prior to bidding.

Energy Efficiency Rating (EPC)

Current Rating TBC

Local Authority

Wigan Metropolitan Borough Council

Solicitors

Stephensons Solicitors LLP, Ref: David Baybut, Tel: 01942 774180

Offered in association with

Parkinson Real Estate

Important Notice to Prospective Buyers:

We draw your attention to the Special Conditions of Sale within the Legal Pack, referring to other charges in addition to the purchase price which may become payable. Such costs may include Search Fees, reimbursement of Sellers costs and Legal Fees, and Transfer Fees amongst others.

Additional Fees

Administration Charge - 2.5% inc VAT of the purchase price, subject to a minimum of £2500 inc VAT, payable on exchange of contracts.

Disbursements - Please see the legal pack for any disbursements listed that may become payable by the purchaser on completion.

View Larger Map

Disclaimer: The map preview provided above is for general guidance only and may not accurately reflect the exact location or surrounding buildings. Prospective buyers and interested parties are strongly advised to independently verify the precise location and surroundings before bidding.