For Sale By Auction | 12:00, 11 February 2026 | Lot 61

Land at 58-60 Shudehill, (aka 56 Shudehill), Manchester, Greater Manchester M4 4AA

*Guide | £365,000 (plus fees)

  • Land
  • Tenure: Freehold

Call the team on 01772 772450 for more information

Auction Date

Wed 11/02/2026

Auction Time

12:00

Auction Venue

Online Auction

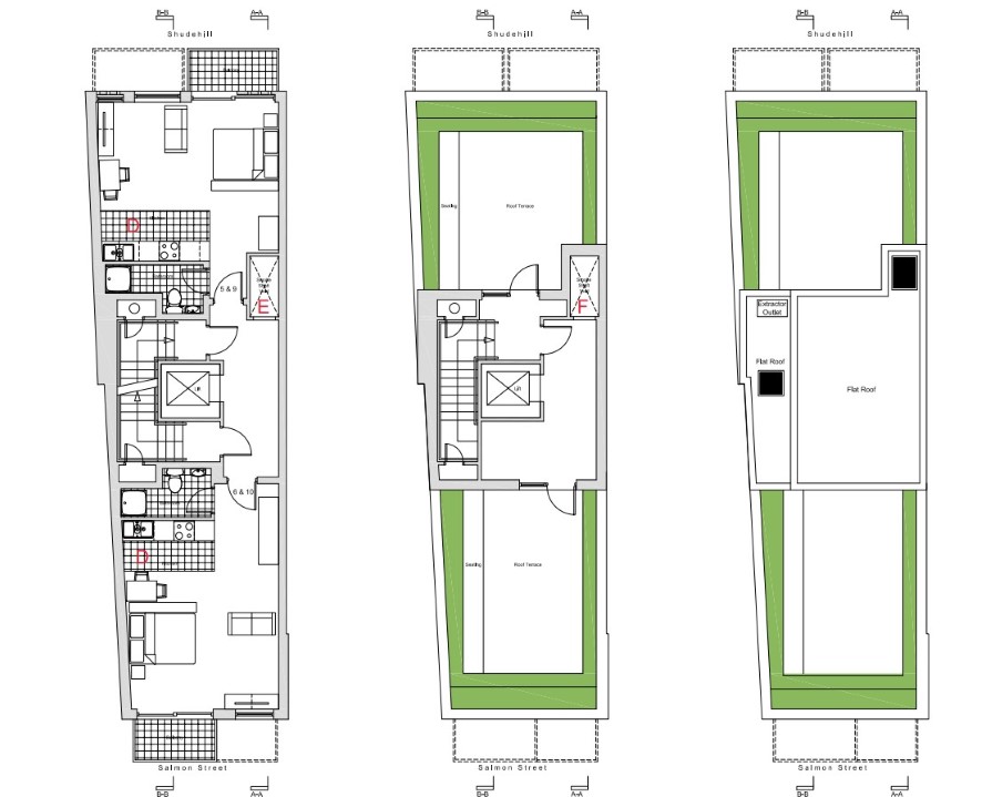
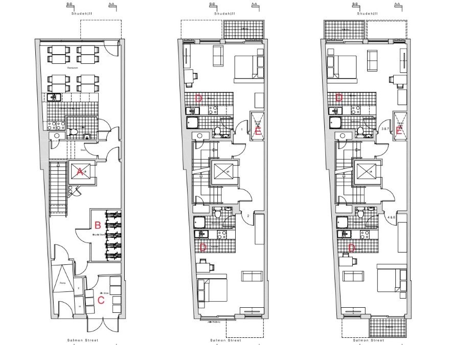
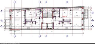
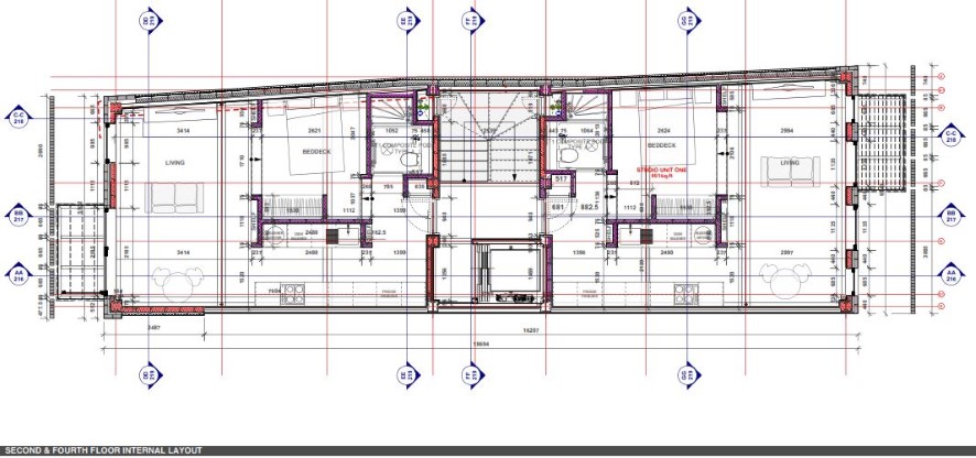
Development Site – Consent For 10 Apartments & Retail Unit

Prime development site situated fronting Shudehill and backing onto Salmon Street in the Northern Quarter area of Manchester City Centre. The site benefits from planning consent granted September 2018 Reference 120099/FO/2018 (Alternative Reference PP-06725679) for the erection of a 6 storey building with roof top terrace level comprising ground floor level A1 (Shop)/ A3 (Restaurant and Cafe) Use (Sui Generis) with 10 apartments (10 x 1 person apartments) (Class C3) above and associated works. We are informed that the consent has been preserved with piling works having been undertaken. The site fronts Shudehill opposite the transport interchange (tram stop) and spans back to Salmon Street to the rear and is ideally located close all City Centre amenities including Crowne Plaza and Holiday Inn hotels, Arndale Shopping Centre, plus leisure destinations such as Mackie Mayors, Frog & Bucket and Band on The Wall. Tenure: Freehold Title number: LA28943 Local Authority: Manchester Finance is available on this lot. For a decision-in-principle visit togethermoney.com/amydip/

Tenure

Freehold

IMPORTANT INFORMATION

Buying at auction is a contractual commitment, you are legally obliged to buy the lot on the terms of the sale memorandum at the price you bid. If you are the successful bidder, you are required to pay the deposit and auction fees immediately. As agent for the seller, we treat any failure to satisfy your obligations as your repudiation of the contract and the seller may then have a claim against you for breach of contract. You must not bid unless you wish to be bound by the common conditions of auction.

ANTI-MONEY LAUNDERING REGULATIONS

In accordance with Anti-Money Laundering Regulations, two forms of identification and confirmation of the source of funding will be required from the successful purchaser. Every effort has been made to confirm the accuracy of the lot details including any defect in the title both with the vendor and their solicitor. Auction House will not be held responsible for any failure to disclose any such defects. Any purchasers choosing to buy without viewing in person are doing so at their own risk and acknowledge that the auctioneer will not be held responsible for any issues that may arise due to them being unintentionally missed from the video or sales particulars. Please refer to legal pack for additional fees and the Auction Information document for guidance prior to bidding.

Local Authority

Manchester City Council

Important Notice to Prospective Buyers:

We draw your attention to the Special Conditions of Sale within the Legal Pack, referring to other charges in addition to the purchase price which may become payable. Such costs may include Search Fees, reimbursement of Sellers costs and Legal Fees, and Transfer Fees amongst others.

Additional Fees

Administration Charge - 2.5% inc VAT of the purchase price, subject to a minimum of £2500 inc VAT, payable on exchange of contracts.

Disbursements - Please see the legal pack for any disbursements listed that may become payable by the purchaser on completion.

View Larger Map

Disclaimer: The map preview provided above is for general guidance only and may not accurately reflect the exact location or surrounding buildings. Prospective buyers and interested parties are strongly advised to independently verify the precise location and surroundings before bidding.