For Sale By Auction | 12:00, 18 March 2026

School Lane Chippy , 54 School Lane, Bamber Bridge , Preston, Lancashire PR5 6QE

*Guide | £85,000 (plus fees)

  • Retail Property (out of town)
  • Tenure: Freehold

Call the team on 01772 772450 for more information

Auction Date

Wed 18/03/2026

Auction Time

12:00

Auction Venue

Online Auction

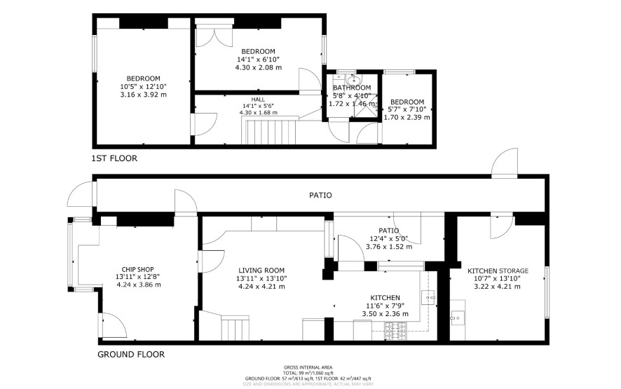
Former Takeaway (Chippy) With Three Bed Accommodation

Two storey end terrace property, previously utilised as ground floor takeaway (chippy) with three bedroom living accommodation to the rear and above. Internally the property briefly comprises the following accommodation: - Ground Floor – Front Takeaway Servery/Sales, Lounge, Kitchen. Rear Store/Prep. First Floor – Three Bedrooms and Bathroom. Externally there is a rear yard area. The property is fitted with gas fired central heating. Would appear suited to continued use as a takeaway with residential accommodation but also offers the potential to convert to house or 2x flats, subject to the required consents being obtained. Tenure: Freehold Title number: LA878560 Council Tax Band : A Local Authority: Preston Finance is available on this lot. For a decision-in-principle visit togethermoney.com/amydip/

Tenure

Freehold

IMPORTANT INFORMATION

Buying at auction is a contractual commitment, you are legally obliged to buy the lot on the terms of the sale memorandum at the price you bid. If you are the successful bidder, you are required to pay the deposit and auction fees immediately. As agent for the seller, we treat any failure to satisfy your obligations as your repudiation of the contract and the seller may then have a claim against you for breach of contract. You must not bid unless you wish to be bound by the common conditions of auction.

ANTI-MONEY LAUNDERING REGULATIONS

In accordance with Anti-Money Laundering Regulations, two forms of identification and confirmation of the source of funding will be required from the successful purchaser. Every effort has been made to confirm the accuracy of the lot details including any defect in the title both with the vendor and their solicitor. Auction House will not be held responsible for any failure to disclose any such defects. Any purchasers choosing to buy without viewing in person are doing so at their own risk and acknowledge that the auctioneer will not be held responsible for any issues that may arise due to them being unintentionally missed from the video or sales particulars. Please refer to legal pack for additional fees and the Auction Information document for guidance prior to bidding.

Energy Efficiency Rating (EPC)

Current Rating D

Local Authority

Preston City Council

Solicitors

Gowlings, Derby House, Ref: Gowlings, Tel: 01772 251287

Important Notice to Prospective Buyers:

We draw your attention to the Special Conditions of Sale within the Legal Pack, referring to other charges in addition to the purchase price which may become payable. Such costs may include Search Fees, reimbursement of Sellers costs and Legal Fees, and Transfer Fees amongst others.

Additional Fees

Administration Charge - 2.5% inc VAT of the purchase price, subject to a minimum of £2500 inc VAT, payable on exchange of contracts.

Disbursements - Please see the legal pack for any disbursements listed that may become payable by the purchaser on completion.

View Larger Map

Disclaimer: The map preview provided above is for general guidance only and may not accurately reflect the exact location or surrounding buildings. Prospective buyers and interested parties are strongly advised to independently verify the precise location and surroundings before bidding.