For Sale By Auction | 00:00, 17 June 2026

80-82 Lord Street , Fleetwood, Lancashire FY7 6JZ

*Guide | £180,000 (plus fees)

  • Commercial Development
  • Tenure: Leasehold.

Call the team on 01772 772450 for more information

Auction Date

Wed 17/06/2026

Auction Time

00:00

Auction Venue

Online Auction

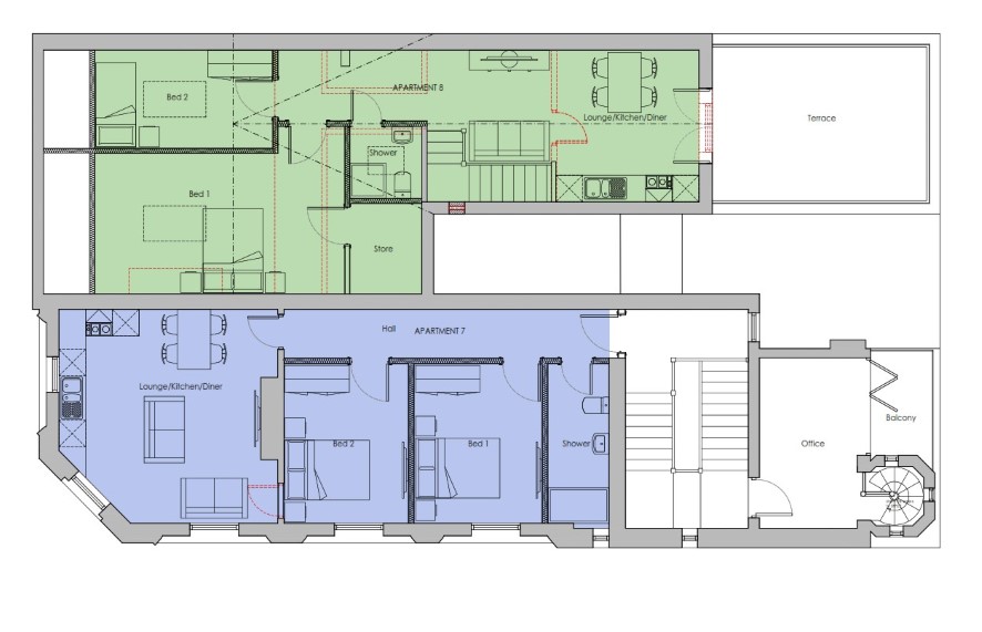
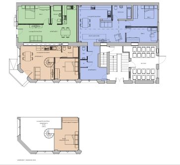
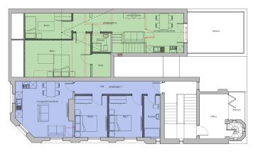
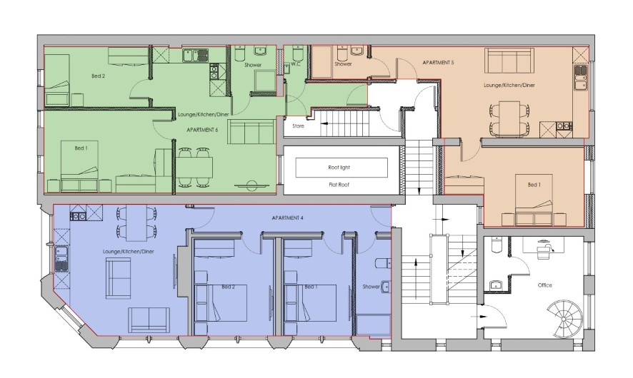
Former Bank – Planning Consent To Convert To 8 x Apartments & 1 x Office

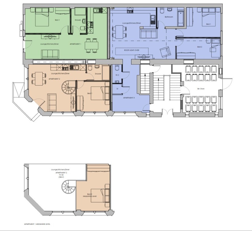
Substantial three storey corner property, formerly a bank, which now benefits from planning permission to convert to 8x apartments (6x 2 bed & 2x 1 bed) and 1x office. The property also benefits from conversion works having commenced to include; all the windows for the project already been purchased, all asbestos has been removed, with a certificate to prove it. Some renovation work has already been carried out on the building, including sub-dividing works. Planning Granted December 2023 for Change of use from vacant bank (Use Class E) to 8 self-contained apartments (Use Class C3) and 1 office, with first floor rear extension Wyre Council Ref : 23/00832/FUL Centrally located at the corner of Lord Street and London Street, within 30m from London Street tram stop. Tenure: long leasehold Title number: LAN220997 Length of Lease/Term: 999 years from January 1862 Ground Rent : £ Service Charge: £ Council Tax Band : Local Authority: Wyre Finance is available on this lot. For a decision-in-principle visit togethermoney.com/amydip/

Tenure

Leasehold.

IMPORTANT INFORMATION

Buying at auction is a contractual commitment, you are legally obliged to buy the lot on the terms of the sale memorandum at the price you bid. If you are the successful bidder, you are required to pay the deposit and auction fees immediately. As agent for the seller, we treat any failure to satisfy your obligations as your repudiation of the contract and the seller may then have a claim against you for breach of contract. You must not bid unless you wish to be bound by the common conditions of auction

ANTI-MONEY LAUNDERING REGULATIONS

In accordance with Anti-Money Laundering Regulations, two forms of identification and confirmation of the source of funding will be required from the successful purchaser. Every effort has been made to confirm the accuracy of the lot details including any defect in the title both with the vendor and their solicitor. Auction House will not be held responsible for any failure to disclose any such defects. Any purchasers choosing to buy without viewing in person are doing so at their own risk and acknowledge that the auctioneer will not be held responsible for any issues that may arise due to them being unintentionally missed from the video or sales particulars. Please refer to legal pack for additional fees and the Auction Information document for guidance prior to bidding.

Local Authority

Wyre Borough Council

Important Notice to Prospective Buyers:

We draw your attention to the Special Conditions of Sale within the Legal Pack, referring to other charges in addition to the purchase price which may become payable. Such costs may include Search Fees, reimbursement of Sellers costs and Legal Fees, and Transfer Fees amongst others.

Additional Fees

Administration Charge - 2.75% inc VAT of the purchase price, subject to a minimum of £2750 inc VAT, payable on exchange of contracts.

Disbursements - Please see the legal pack for any disbursements listed that may become payable by the purchaser on completion.

View Larger Map

Disclaimer: The map preview provided above is for general guidance only and may not accurately reflect the exact location or surrounding buildings. Prospective buyers and interested parties are strongly advised to independently verify the precise location and surroundings before bidding.