For Sale By Auction | 00:00, 17 June 2026

Units at, Bentwood Road, Haslingden, Rossendale, Lancashire BB4 5HH

*Guide | £2,100,000 (plus fees)

  • Commercial Property
  • Tenure: Freehold

Call the team on 01772 772450 for more information

Auction Date

Wed 17/06/2026

Auction Time

00:00

Auction Venue

Online Auction

Industrial Investment Opportunity – Producing £230,000 pax

Flexipol Limited occupy 5 adjoining industrial units providing a gross internal floor area of 37,012 sq.ft. The buildings were on the whole constructed in the mid to late 1980's when the estate has Enterprise Zone status. A modern high bay extension and link building ave been added in recent years. The various buildings are predominantly of steel portal frame construction with insulated profile clad walls and roof which incorporates clear roof panels. The eaves height in most of the units is approximately 5.4 metres. They benefit from several roller shutter doors, with office and amenity space throughout. The units are situated within an attractive landscaped environment accessed of both Bentwood Road and Underbank Way It should be noted that 2 neighbouring units share the loading and parking area to the front of all the units, however these are excluded from the sale and have been sold to third party landlords/vendors. See plan Tenure: freehold Title number: LA830150 Local Authority: Rossendale Finance is available on this lot. For a decision-in-principle visit togethermoney.com/amydip/

Tenure

Freehold

Lease Terms

The original lease was renewed and now comprises a lease from 5th June 2025 for a period of 10 years. It is held on a full repairing basis. The rent is £230,000 pa. The lease incorporates tenant break dates in June 2028 & June 2031 with 6 months’ notice. There is a rent review in June 2030. We have been informed that the 2028 break clause will not be exercised. All interested parties are to satisfy themselves in this regard. The tenant is Flexipol Packaging Limited Company number 02963868. They reported a turnover £43.2m up to March 2025 and a net worth of £7.5m and EBITDA of £2.1m. The tenants have been in the current premises for approximately 30 years and also have (smaller) sites in Dunstable and Hull.

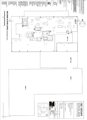
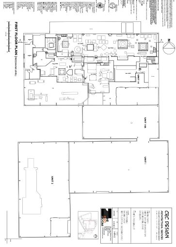
Accommodation (approx. GIA)

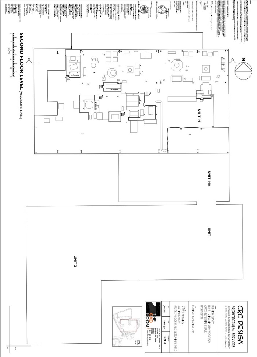
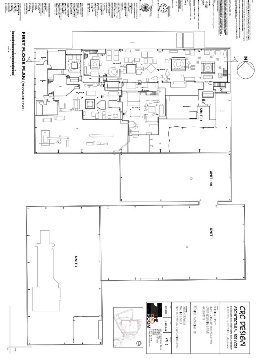
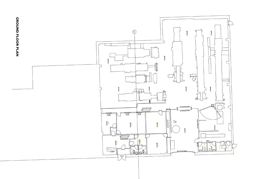
Unit 1 Ground Floor Workshop - 5,836 Sq. ft Unit 2 Ground Floor Workshop - 5,454 Sq. ft Link Building Ground Floor Workshop - 2,787 Sq. ft Units 14/14A Ground Floor Offices/Ancillary - 676 Sq. ft Workshop - 10,395 Sq. ft Extension (not inspected) - 1,200 sq.ft (approx) First Floor Canteen/Ancillary - 676 sq.ft Units 3C & 3D Ground Floor Offices/Reception - 1,440 sq.ft Warehouse 1 (3C) - 2,369 sq.ft Warehouse 2 (3D) - 4,739 sq.ft First Floor Offices - 1,440 sq.ft Total 37,012 sq.ft. / 3,438.5 m2

VAT

To be confirmed but the sale is expected to be proceed by way of a TOGC and therefore no VAT will be applicable to eligible parties

Investment Return

Based on the guide price of £2.625m the net yield is 10.3% when allowing for acquisition costs A purchase at the guide price equates to £56.74 per sq.ft. capital value.

Planning

The property is currently used for industrial purposes.

Location

The various properties are situated on Bentwood Road on the popular Carrs Industrial Estate on the edge of Haslingden. This is an established industrial/business location with easy access to the national motorway network via the A56(Haslingden Bypass) which links to the M65 motorway to the North and the M66/M60/M62 motorways, to the South. Established occupiers on the estate include TNT, Powder Coatings Northern and Foremost Furniture.

IMPORTANT INFORMATION

Buying at auction is a contractual commitment, you are legally obliged to buy the lot on the terms of the sale memorandum at the price you bid. If you are the successful bidder, you are required to pay the deposit and auction fees immediately. As agent for the seller, we treat any failure to satisfy your obligations as your repudiation of the contract and the seller may then have a claim against you for breach of contract. You must not bid unless you wish to be bound by the common conditions of auction.

ANTI-MONEY LAUNDERING REGULATIONS

In accordance with Anti-Money Laundering Regulations, two forms of identification and confirmation of the source of funding will be required from the successful purchaser. Every effort has been made to confirm the accuracy of the lot details including any defect in the title both with the vendor and their solicitor. Auction House will not be held responsible for any failure to disclose any such defects. Any purchasers choosing to buy without viewing in person are doing so at their own risk and acknowledge that the auctioneer will not be held responsible for any issues that may arise due to them being unintentionally missed from the video or sales particulars. Please refer to legal pack for additional fees and the Auction Information document for guidance prior to bidding.

Energy Efficiency Rating (EPC)

Current Rating Unit 1- D (78) Unit 2 C (51) Unit 3 B (48) Unit 14-B (43)

Local Authority

Rossendale Borough Council

Solicitors

DLA Piper, Ref: DLA Piper

Offered in association with

Taylor Weaver Ltd

Important Notice to Prospective Buyers:

We draw your attention to the Special Conditions of Sale within the Legal Pack, referring to other charges in addition to the purchase price which may become payable. Such costs may include Search Fees, reimbursement of Sellers costs and Legal Fees, and Transfer Fees amongst others.

Additional Fees

Administration Charge - 2.75% inc VAT of the purchase price, subject to a minimum of £2750 inc VAT, payable on exchange of contracts.

Disbursements - Please see the legal pack for any disbursements listed that may become payable by the purchaser on completion.

View Larger Map

Disclaimer: The map preview provided above is for general guidance only and may not accurately reflect the exact location or surrounding buildings. Prospective buyers and interested parties are strongly advised to independently verify the precise location and surroundings before bidding.