For Sale By Auction | 02:00 pm, 16 May 2018 | Lot 40

Plot 163 To Rear Of West Park Avenue, Ashton-On-Ribble, Preston, Lancashire, PR2 1SX

Sold £450

  • Land
  • Tenure: Freehold

Call the team on 0161 830 7477 for more information

Auction Date

Wed 16/05/2018

Auction Time

02:00 pm

Auction Venue

Macron Stadium, Platinum Suite, De Havilland Way, Bolton, BL6 6SF

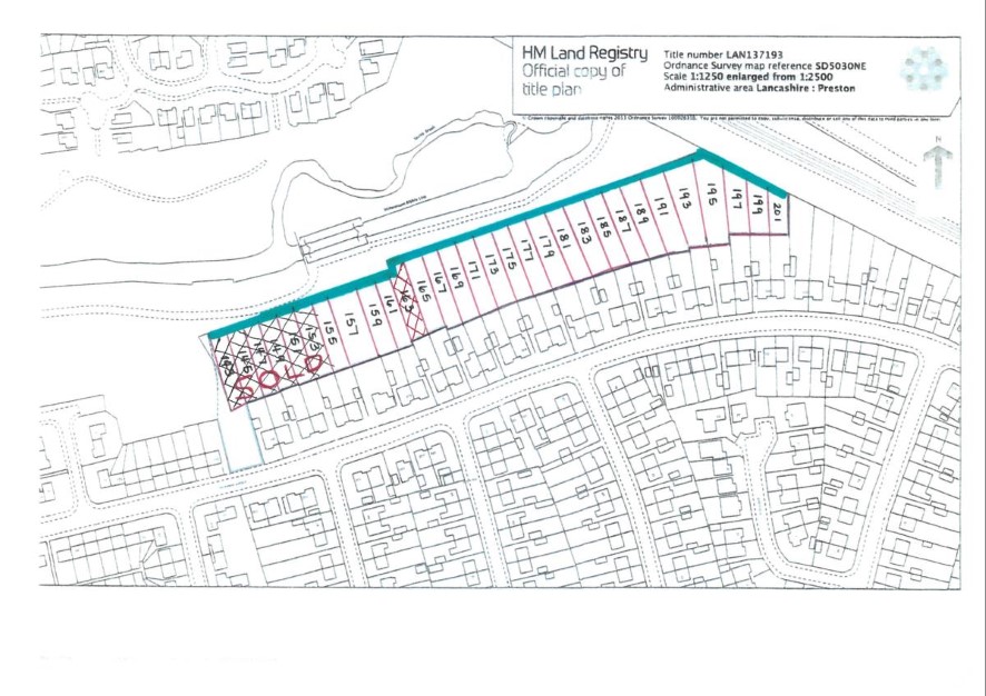
Freehold Parcel of Land to Rear of 163 West Park Avenue, Ashton-on-Ribble, Preston, PR2 1SX

Parcel of land to rear of West Park Avenue, Ashton-on-Ribble, Preston, PR2 1SX. Forming part of a larger 3 acre site being sold as individual freehold plots roughly in line with neighbouring gardens. The land extends down to the walkway alongside the 'Millennium Ribble Link' which is a section of Savick Brook which links the Lancaster Canal with the River Ribble. This provides pleasant rear rural aspects. The position is on the north-western outskirts of Preston approximately two and a half miles from the city centre. The plot and position are indicated, edged red and hatched, on the location plan attached. A strip of land to the rear of the plots provides access across the site and is shown coloured in green. Purchasers must rely upon their own legal advisor's enquiries to establish exact boundary positioning and the exact size and extent of the plot being offered.

Tenure

Freehold

Viewing

Any reasonable time at own risk

Local Authority

Preston City Council

Important Notice to Prospective Buyers:

We draw your attention to the Special Conditions of Sale within the Legal Pack, referring to other charges in addition to the purchase price which may become payable. Such costs may include Search Fees, reimbursement of Sellers costs and Legal Fees, and Transfer Fees amongst others.

Additional Fees

Administration Charge - 0.9% including VAT subject to a minimum of £900.00 including VAT

Disbursements - Please see the legal pack for any disbursements listed that may become payable by the purchaser on completion.

View Larger Map

Disclaimer: The map preview provided above is for general guidance only and may not accurately reflect the exact location or surrounding buildings. Prospective buyers and interested parties are strongly advised to independently verify the precise location and surroundings before bidding.