For Sale By Auction | 11:00, 08 September 2022 | Lot 4

2 Forty Foot Cottage, Pointon Fen, Sleaford, Nottinghamshire NG34 0LF

Sold £140,000

  • Semi-Detached House
  • 2 Bedrooms
  • Tenure: See Legal Pack

Call the team on 0115 777 8888 for more information

Auction Date

Thu 08/09/2022

Auction Time

11:00

Auction Venue

Livestream Online

Viewing Times:

Fri 26 Aug

13:00-13:30

Fri 2 Sep

12:00-12:30

FOR SALE VIA OUR LIVESTREAM AUCTION ON THE 8TH SEPTEMBER AT 11AM. PLEASE REGISTER TO BID VIA THE AUCTION HOUSE WEBSITE!

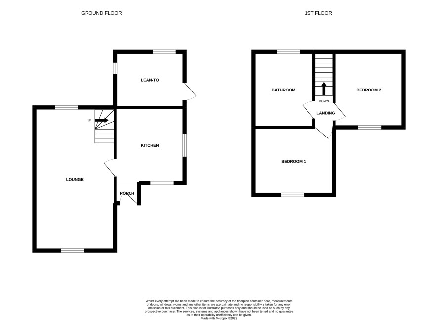
A rare opportunity to purchase a two bedroomed, semi-detached cottage situated in a rural location, surrounded by farmland. The property requires modernisation, but offers excellent potential for improvement and extension - subject to the relevant permissions. The accommodation comprises porch, lounge, kitchen, lean-to, two bedrooms and a bathroom. Outside, there are gardens to three sides. Early viewing is recommended to appreciate the location and property on offer. OPEN VIEWINGS FRIDAY 26TH AUGUST @ 1:00PM - 1:30PM FRIDAY 2ND SEPTEMBER @ 12:00PM - 12:30PM

Tenure

See Legal Pack

Entrance Porch

Front door to entrance porch. Open through to the kitchen.

Kitchen

11'6 x 9'11 Base and eye level units. Stainless steel sink with mixer tap. Window to the front and side. Radiator. Wall mounted boiler. Door to:

Lean-To

12'11 x 8'6 Window to rear and side. Door to side. Radiator.

Lounge

21'11 x 11'10 Decorative fireplace. Windows to the front and rear. Two radiators. Stairs to the first floor.

Landin

Loft access.

Bedroom One

11'11 x 11'11 Window to the front. Radiator.

Bedroom Two

11'6 x 9'11 Window to the front. Radiator.

Bathroom

Bath with shower over. Pedestal wash hand basin. Low level W.C. Window to the rear. Airing cupboard.

Outside

Situated in a rural location, with fields to the front, side and rear of the property. Gated gravel driveway. Lawn to the front, side and rear. Hedging to the boundaries. Outbuilding at the rear. LPG tank in the front garden.

Energy Efficiency Rating (EPC)

Current Rating tbc

Important Notice to Prospective Buyers:

We draw your attention to the Special Conditions of Sale within the Legal Pack, referring to other charges in addition to the purchase price which may become payable. Such costs may include Search Fees, reimbursement of Sellers costs and Legal Fees, and Transfer Fees amongst others.

Additional Fees

Buyer's Premium - £1200 inc VAT payable on exchange of contracts.

Administration Charge - £1200 inc VAT payable on exchange of contracts.

Disbursements - Please see the legal pack for any disbursements listed that may become payable by the purchaser on completion.

View Larger Map

Disclaimer: The map preview provided above is for general guidance only and may not accurately reflect the exact location or surrounding buildings. Prospective buyers and interested parties are strongly advised to independently verify the precise location and surroundings before bidding.