For Sale By Auction | 11:00, 19 October 2023 | Lot : AVAILABLE POST AUCTION

-

*Guide | £135,000 (plus fees)

  • Commercial Property
  • 7 Bedrooms
  • Tenure: See Legal Pack

Call the team on 0115 777 8888 for more information

Auction Date

Thu 19/10/2023

Auction Time

11:00

Auction Venue

Livestream Online

UNSOLD AT AUCTION. PLEASE CONTACT US IF YOU WISH TO PLACE A POST-AUCTION OFFER.

This is a fantastic opportunity to purchase this generously-sized detached property, which is Grade II Listed and spent many years as a suite of professional offices over 2 floors. Listed Building Consent and Planning Permission were granted in 2020 for the conversion of the subject premises into 3 dwellings - 2 x two bedroom Townhouses and 1 x three bedroom Townhouse - which have now expired. The following Planning Consents were granted by Bassetlaw District Council (subject to conditions) on the 6th April 2020. These have now expired. 1. Listed Building Consent, Application Number 19/00387/LBA for the conversion of offices into 3 dwellings. 2. The grant of Planning Permission for change of use, Application Number 19/00386/COU for the conversion of offices into 3 dwellings. Plans and planning consent forms are available for inspection on the Local Authority's (Bassetlaw District Council) planning website and buyers should do their own research into the details of the planning consents. Situated within walking distance of Worksop Town Centre, the property is conveniently located close to shops, restaurants, bus station and train station.

Tenure

See Legal Pack

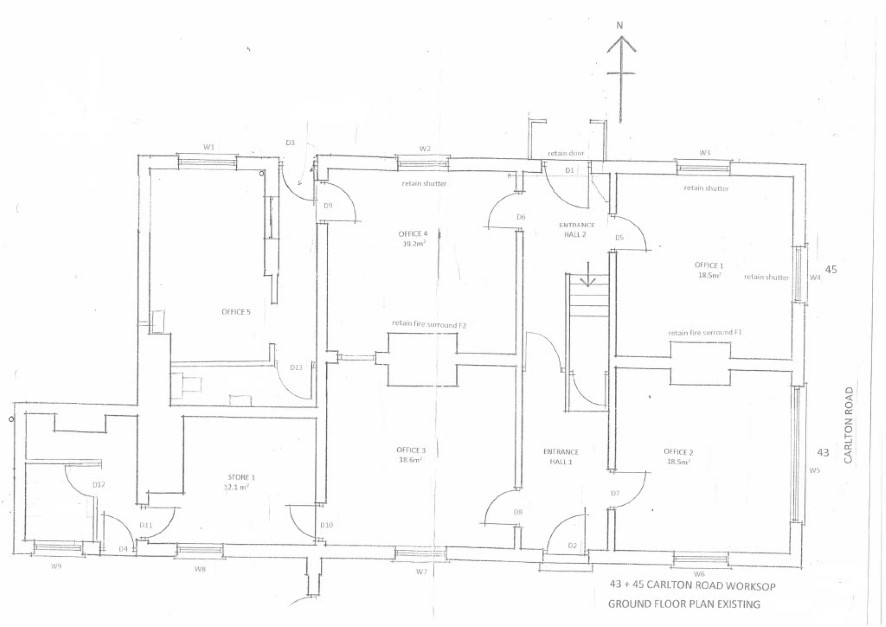
GROUND FLOOR ACCOMMODATION

Entrance Hall - Stairs to the first floor. Door to the rear. Office 1 - 13'11 x 13'10 - Window to front and side. Fireplace. Office 2 - 14'1 x 14' - Window to side and rear. Office 3 - 15' x 14' - Window to the rear. Office 4 - 15' x 14' - Window to the front. Fireplace. Office 5 - 14'3 x 8'9 - Window to the front. Store 1 - 10'4 x 10'1 - Window to rear. Rear Hall - Door to rear. W.C.

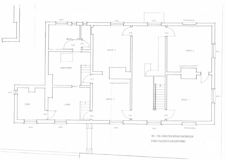
FIRST FLOOR ACCOMMODATION

Landing - 28'11 x 10'6 - Window to front and rear. Office 6 - 14'2 x 13'11 - Window to side. Office 7 - 14' x 13'11 - Window to side. Office 8 - 14' x 11'6 - Window to front. Office 9 - 14' x 11'7 - Window to rear. Store 1 - 12'9 x 9'9 - Window to rear. Store 2 - 8'8 x 8'6 - Window to side and rear. Print Room - 13'1 x 10'1 - Skylight. Old Kitchen - 8'11 x 7'5 - Window to front.

OUTSIDE

Ample space outside for conversion to off-road parking (subject to relevant consent).

Energy Efficiency Rating (EPC)

Current Rating F

Offered in association with

Mellor and Beer

Important Notice to Prospective Buyers:

We draw your attention to the Special Conditions of Sale within the Legal Pack, referring to other charges in addition to the purchase price which may become payable. Such costs may include Search Fees, reimbursement of Sellers costs and Legal Fees, and Transfer Fees amongst others.

Additional Fees

Buyer's Premium - £1200 inc VAT payable on exchange of contracts.

Administration Charge - £1200 inc VAT payable on exchange of contracts.

Disbursements - Please see the legal pack for any disbursements listed that may become payable by the purchaser on completion.

View Larger Map

Disclaimer: The map preview provided above is for general guidance only and may not accurately reflect the exact location or surrounding buildings. Prospective buyers and interested parties are strongly advised to independently verify the precise location and surroundings before bidding.