For Sale By Auction | 14:00, 24 October 2023 | Lot 26

10 & 10A Russell Street , Stroud, Gloucestershire GL5 3AB

Sold After

  • Commercial Property
  • Tenure: Freehold

Call the team on 0117 299 9889 for more information

Auction Date

Tue 24/10/2023

Auction Time

14:00

Auction Venue

Live Stream

Mid-Terrace Period Building

Offering to auction two commercial units situated in the heart of Stroud which is on the crossroads of the A46 and A419 with excellent access to both the M5 and M4 and the nearby centres of Cheltenham, Gloucester, Bath, Bristol and Cirencester. The accommodation comprises two commercial units to the ground floor, with both units providing staircase access to the upper floors. The upstairs provides additional rooms that historically have been used for office space/storage.

Tenure

Freehold

AUCTIONEERS NOTE

The current owners have had an extensive appraisal undertaken by an architect for the redevelopment of the property. Architect’s plans have been drawn for a single commercial unit on the ground floor with flats above, these plans support a pre-application for planning consent and can be found within the legal pack.

ACCOMODATION

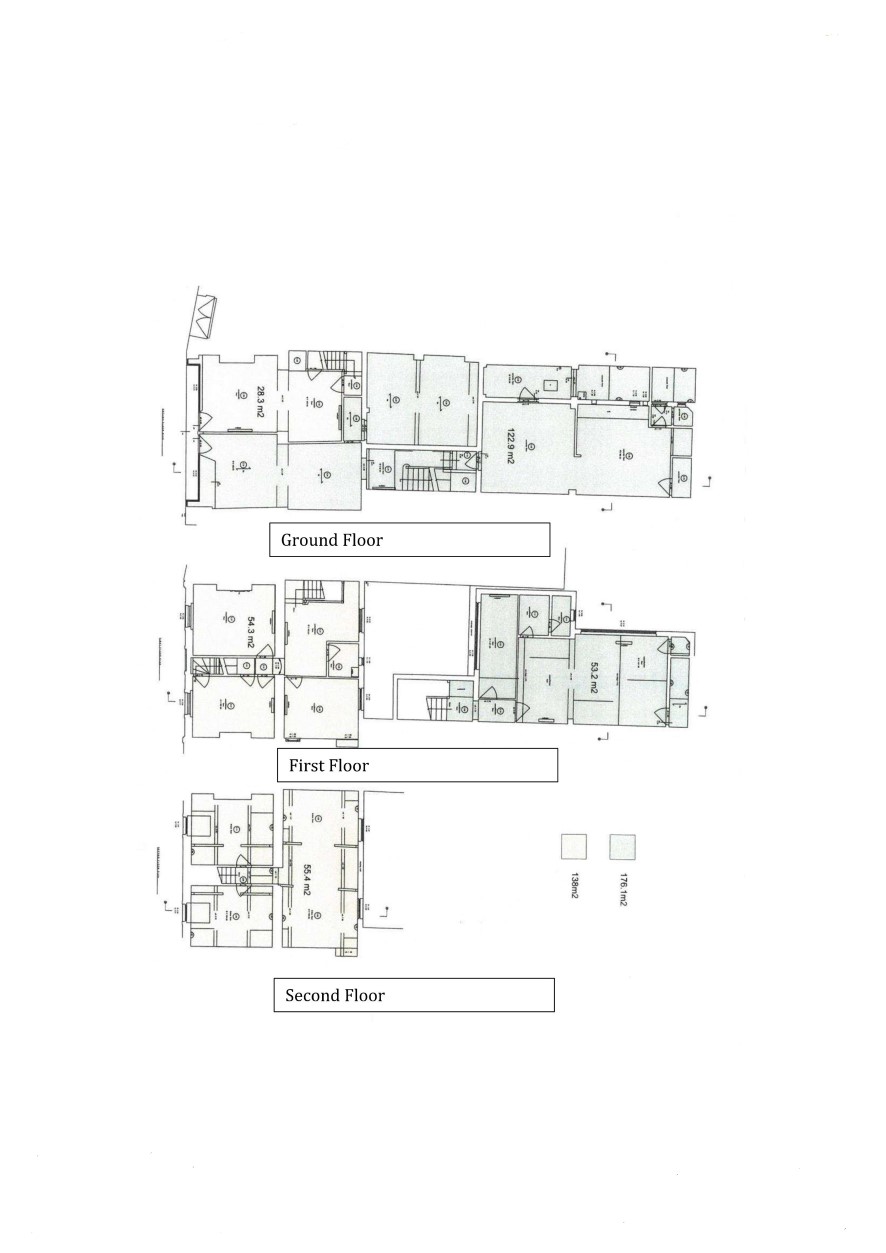
Ground Floor (inc. basement): 1,628 sq ft (151.2 sq m) First Floor: 1,157 sq ft (107.5 sq m) Second Floor: 596 sq ft (55.4 sq m) Total: 3,381 sq ft (314.1 sq m)

VIEWINGS

Regular block viewing sessions will be provided in the lead up to the auction. Please telephone Auction House South West on 03456 461361 to request a viewing.

NOTICE TO BIDDER

Please be aware that if your Bid is successful on Auction day the exchange of contracts will happen immediately after the Auction

FULL DETAILS

Photographs, Dimensions, Floor Plans and Area Measurements (when available) are included within our full details online on our website. All published information is to aid identification of the property and is not necessarily to scale.

Energy Efficiency Rating (EPC)

Current Rating TBC

Local Authority

Gloucestershire County Council

Solicitors

22 Law Solicitors, 22 Front Street, Ref: Claire Stanton, Tel: 0191 488 4950

Important Notice to Prospective Buyers:

We draw your attention to the Special Conditions of Sale within the Legal Pack, referring to other charges in addition to the purchase price which may become payable. Such costs may include Search Fees, reimbursement of Sellers costs and Legal Fees, and Transfer Fees amongst others.

Additional Fees

Administration Charge - £1200 inc VAT payable on exchange of contracts.

Disbursements - Please see the legal pack for any disbursements listed that may become payable by the purchaser on completion.

View Larger Map

Disclaimer: The map preview provided above is for general guidance only and may not accurately reflect the exact location or surrounding buildings. Prospective buyers and interested parties are strongly advised to independently verify the precise location and surroundings before bidding.