Sold Prior | Lot 29

Bible Christian Chapel, St. Peters Street, St. Ives, Cornwall TR26 1NN

Sold Prior

  • Place of Worship
  • Tenure: Freehold

Call the team on 01872 484888 for more information

Auction Date

Tue 09/07/2024

Auction Time

14:00

Auction Venue

Live Stream

Grade II Listed Church In Downalong, St. Ives

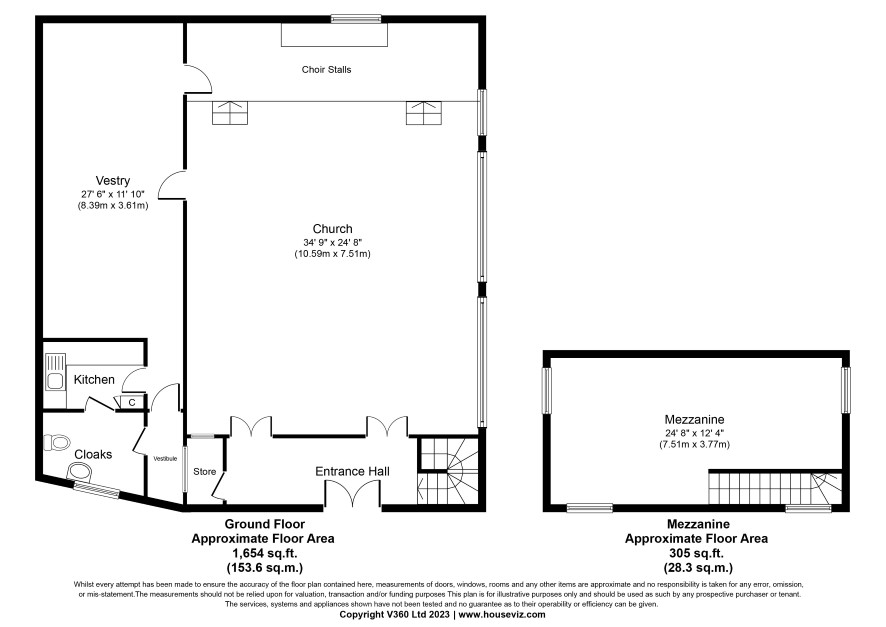
This Grade II listed Church was built in 1858 and is set in a prominent position in the Heart of Downalong. Moments from Porthmeor Beach and Tate St. Ives the property could be an excellent opportunity for conversion to residential accommodation, subject to obtaining the necessary consents. Accommodation in brief comprises; entering through the main double doors into an entrance hall, store, double doors opening to the main Church hall and with stairs leading up to the mezzanine level. The main hall measure in excess of 10m with Choir stalls to one end and ovelooked by the mezzanine above which spans the width of the hall and approximately 3.7m in depth. Off the side of the main hall there is a vestry and kitchen to one end of the vestry with access to a storage are above the mezzanine.

Tenure

Freehold

ACCOMMODATION

Entrance Hall 6.21m x 2.08m Store 2.08m x 1.15m Chapel Hall 10.59m x 7.51m Mezzanine 7.51m x 3.77m Vestry 8.39m x 3.61m Kitchen Area

VIEWINGS

Weekly block viewing sessions will be provided in the lead up to the auction. Please telephone Auction House South West T: 03456 461361 to book a viewing slot.

NOTICE TO BIDDER

Please be aware that if your Bid is successful on Auction day the exchange of contracts will happen immediately after the Auction.

FULL DETAILS

Photographs, Dimensions, Floor Plans and Area Measurements (when available) are included within our full details online on our website. All published information is to aid identification of the property and is not necessarily to scale.

Local Authority

Cornwall County Council

Solicitors

Blake Morgan LLP, Ref: Emily Poynton, Tel: 029 2068 6186

Offered in association with

Berwicks

Important Notice to Prospective Buyers:

We draw your attention to the Special Conditions of Sale within the Legal Pack, referring to other charges in addition to the purchase price which may become payable. Such costs may include Search Fees, reimbursement of Sellers costs and Legal Fees, and Transfer Fees amongst others.

Additional Fees

Administration Charge - £1200 inc VAT payable on exchange of contracts.

Disbursements - Please see the legal pack for any disbursements listed that may become payable by the purchaser on completion.

View Larger Map

Disclaimer: The map preview provided above is for general guidance only and may not accurately reflect the exact location or surrounding buildings. Prospective buyers and interested parties are strongly advised to independently verify the precise location and surroundings before bidding.