Sold Prior | Lot 24

The Rising Sun, 87 Boutport Street, Barnstaple, Devon EX31 1SR

Sold Prior

  • Mixed Use
  • 11 Bedrooms
  • Tenure: Freehold

Call the team on 01752 474200 for more information

Auction Date

Thu 08/05/2025

Auction Time

14:00

Auction Venue

Live Stream

Mixed Use Investment

A Grade II listed, End Terrace centrally located FREEHOLD building, comprising of substantial, currently vacant, Commercial premises on the ground floor. A part tenanted HMO and flat set across three floors is above, entered by separate access.

Tenure

Freehold

AUCTIONEERS NOTE

The ground floor commercial property has been refurbished and although is currently vacant, there are interested parties that are in negotiations to occupy. The Commercial income (subject to VAT at 20%) is currently being negotiated at: - Year 1: £12,000 - Years 2 & 3: £24,000 - Years 4, 5 & 6: £30,000 - Years 7, 8 & 9: RPI upward increase only - Ingoing premium of £20k (negotiable) The tenanted property currently produces an income of £3245pcm but has an estimated income of £6460 when fully let.

ACCOMMODATION

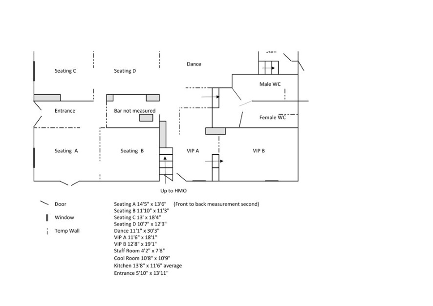
Commercial area comprises of front bar area, 3 seating areas, dancefloor area, toilets, kitchen area (not fitted), store room. Residential Letting is set over floors one, two and three including the rear tenement, and comprises of 11 letting rooms, 3 bathrooms / shower rooms, communal kitchen / dining space and a 1 bedroom flat.

FULL DETAILS

Photographs, Dimensions, Floor Plans and Area Measurements (when available) are included within our full details online on our website. All published information is to aid identification of the property and is not necessarily to scale.

VIEWINGS

Please telephone Auction House South West on 03456 461361 to request a viewing.

NOTICE TO BIDDER

Please be aware that if your Bid is successful on Auction day the exchange of contracts will happen immediately after the Auction.

Energy Efficiency Rating (EPC)

Current Rating See legal pack

Local Authority

North Devon District Council

Solicitors

Samuels Solicitors, Ref: Laura Mather, Tel: 01271 343457

Offered in association with

Midwinter Koval

Important Notice to Prospective Buyers:

We draw your attention to the Special Conditions of Sale within the Legal Pack, referring to other charges in addition to the purchase price which may become payable. Such costs may include Search Fees, reimbursement of Sellers costs and Legal Fees, and Transfer Fees amongst others.

Additional Fees

Administration Charge - £1200 inc VAT payable on exchange of contracts.

Disbursements - Please see the legal pack for any disbursements listed that may become payable by the purchaser on completion.

View Larger Map

Disclaimer: The map preview provided above is for general guidance only and may not accurately reflect the exact location or surrounding buildings. Prospective buyers and interested parties are strongly advised to independently verify the precise location and surroundings before bidding.