For Sale By Auction | 14:00, 29 July 2025 | Lot 11

4 Cherry Meadow, Cheriton Fitzpaine, Crediton, Devon EX17 4JX

Sold £178,000

  • Bungalow
  • 2 Bedrooms
  • Tenure: Freehold

Call the team on 01752 474200 for more information

Auction Date

Tue 29/07/2025

Auction Time

14:00

Auction Venue

Live Stream

Residential for Improvement

Vacant detached bungalow in quiet residential location in need of modernisation. The property has a hallway, lounge, dining room, kitchen, 2 bedrooms, bathroom, UPVC double glazing and gas central heating.

Tenure

Freehold

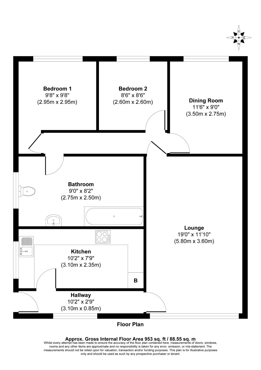
ACCOMMODATION

Hallway Bedroom 1 - 9'8" x 9'8" (2.95m x 2.95m) Bedroom 2: - 8'6" x 8'6" (2.60m x 2.60m) Dining Room - 11'6" x 9'0" (3.50m x 2.75m) Lounge - 19'0" x 11'10" (5.80m x 3.60m) Bathroom - 9'0" x 8'2" (2.75m x 2.50m) Kitchen - 10'2" x 7'9" (3.10m x 2.35m)

FULL DETAILS

Photographs, Dimensions, Floor Plans and Area Measurements (when available) are included within our full details online on our website. All published information is to aid identification of the property and is not necessarily to scale.

VIEWINGS

Block viewing sessions will be held in the lead up to the auction. Please telephone Auction House South West on 03456 461361 to request a viewing.

NOTICE TO BIDDER

Please be aware that if your Bid is successful on Auction day the exchange of contracts will happen immediately after the Auction.

Energy Efficiency Rating (EPC)

Current Rating TBC

Local Authority

Mid Devon District Council

Solicitors

Bromets Jackson Heath LLP, Ref: James Walsh, Tel: 01937 832371

Important Notice to Prospective Buyers:

We draw your attention to the Special Conditions of Sale within the Legal Pack, referring to other charges in addition to the purchase price which may become payable. Such costs may include Search Fees, reimbursement of Sellers costs and Legal Fees, and Transfer Fees amongst others.

Additional Fees

Buyer's Premium - £1200 inc VAT payable on exchange of contracts.

Administration Charge - £1200 inc VAT payable on exchange of contracts.

Disbursements - Please see the legal pack for any disbursements listed that may become payable by the purchaser on completion.

View Larger Map

Disclaimer: The map preview provided above is for general guidance only and may not accurately reflect the exact location or surrounding buildings. Prospective buyers and interested parties are strongly advised to independently verify the precise location and surroundings before bidding.