Withdrawn | Lot 13

2-4, Edward Street, Westbury, Wiltshire BA13 3DR

Withdrawn

  • Commercial Development
  • Tenure: Leasehold. 125 years from 29th September 1990

Call the team on 0117 299 9889 for more information

Auction Date

Tue 29/07/2025

Auction Time

14:00

Auction Venue

Live Stream

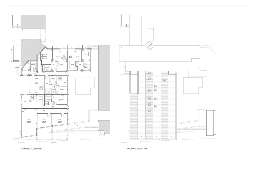
Development Opportunity

Commercial development opportunity, currently a vacant commercial building measuring over 4,000 square feet with parking. There has been a Planning Application submitted and approved for conversion into 5 one bedroom apartments and 3 commercial units. Details can be found on the Wiltshire Council website under the Planning Reference PL/2023/07748.

Tenure

Leasehold. 125 years from 29th September 1990

PLANNING DETAILS

The Planning Permission granted is for the conversion of the building into 5 one bedroom apartments and 3 commercial units. The planning details can be found on the Wiltshire Council website under the Planning Reference PL/2023/07748. There is scope for various options including a full conversion to residential, subject to the necessary consents.

AUCTIONEERS NOTE (CHANGES TO PLANNING)

Please note that the current seller is exploring the option to change the planning to convert into 7 flats instead of the current approved planning of 5 flats and 3 commercial units.

VIEWINGS

Regular block viewing sessions will be provided in the lead up to the auction. Please telephone Auction House South West on 03456 461361 to request a viewing.

FULL DETAILS

Photographs, Dimensions, Floor Plans and Area Measurements (when available) are included within our full details online on our website. All published information is to aid identification of the property and is not necessarily to scale.

NOTICE TO BIDDER

Please be aware that if your Bid is successful on Auction day the exchange of contracts will happen immediately after the Auction.

Energy Efficiency Rating (EPC)

Current Rating C75

Local Authority

Wiltshire Council

Solicitors

Stanton & Partners Solicitors, Ref: Claire Stanton, Tel: 0191 427 0770

Important Notice to Prospective Buyers:

We draw your attention to the Special Conditions of Sale within the Legal Pack, referring to other charges in addition to the purchase price which may become payable. Such costs may include Search Fees, reimbursement of Sellers costs and Legal Fees, and Transfer Fees amongst others.

Additional Fees

Administration Charge - £1200 inc VAT payable on exchange of contracts.

Disbursements - Please see the legal pack for any disbursements listed that may become payable by the purchaser on completion.

View Larger Map

Disclaimer: The map preview provided above is for general guidance only and may not accurately reflect the exact location or surrounding buildings. Prospective buyers and interested parties are strongly advised to independently verify the precise location and surroundings before bidding.