For Sale By Auction | 11:00, 25 March 2026 | Lot 18

Units 1-11, The Old National School, St. Thomas Road, Launceston, Cornwall PL15 8BU

*Guide | £175,000 (plus fees)

  • Commercial Property
  • Tenure: Freehold

Call the team on 01872 484888 for more information

Auction Date

Wed 25/03/2026

Auction Time

11:00

Auction Venue

Live Stream

Commercial Investment Property.

Built in 1840 and restored in 1984 The Old National School is an attractive building comprising a range of office suites and ancillary accommodation with a semi rural outlook located close to Launceston town centre. There is extensive car parking with the addition of a large carpark to the rear.

Tenure

Freehold

AUCTIONEERS NOTE

The seller has advised when it was let it achieved an approx. income of £35,799pa + VAT. The units are on their own electric meters. The gas is shared between 4 units apportioned by square footage. The building is arranged over three levels, each level providing a number of cellular offices and the building has two main access points. There are two carparks the upper carpark and a lower expansive carpark with a electronic barrier. The lower carpark and building has potential for residential development subject to the appropriate planning consents.

ACCOMMODATION

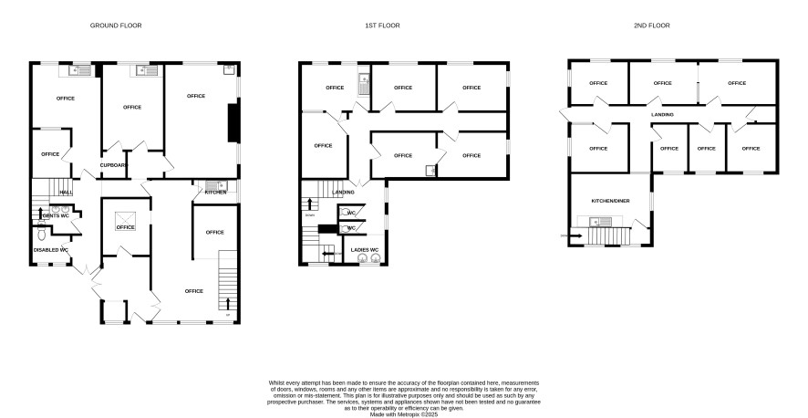
Ground Floor Unit 1 - hallway, office room, large dual office room, mezzanine office & kitchen. Ground Floor Unit 2 - ladies toilet, men's toilet, four office rooms one inclusive of a kitchen area. Stairs to First Floor First Floor Unit 3 - ladies toilet, double doors giving access to 6 offices. Stairs to Second Floor Second Floor Unit can be accessed internally and via the main door to the building. 6 offices, kitchen/dining room. Externally there is an outside picnic area and semi rural countryside views.

FULL DETAILS

Photographs, Dimensions, Floor Plans and Area Measurements (when available) are included within our full details online on our website. All published information is to aid identification of the property and is not necessarily to scale.

VIEWINGS

Please telephone Auction House South West on 03456 461361 to request a viewing.

NOTICE TO BIDDER

Please be aware that if your bid is successful on auction day the exchange of contracts will happen immediately after the auction.

Energy Efficiency Rating (EPC)

Current Rating D77

Local Authority

Cornwall County Council

Important Notice to Prospective Buyers:

We draw your attention to the Special Conditions of Sale within the Legal Pack, referring to other charges in addition to the purchase price which may become payable. Such costs may include Search Fees, reimbursement of Sellers costs and Legal Fees, and Transfer Fees amongst others.

Additional Fees

Buyer's Premium - £360 inc VAT payable on exchange of contracts.

Administration Charge - £1200 inc VAT payable on exchange of contracts.

Disbursements - Please see the legal pack for any disbursements listed that may become payable by the purchaser on completion.

View Larger Map

Disclaimer: The map preview provided above is for general guidance only and may not accurately reflect the exact location or surrounding buildings. Prospective buyers and interested parties are strongly advised to independently verify the precise location and surroundings before bidding.