For Sale By Auction | 11:00, 07 May 2026

20 St. Michaels Avenue, Yeovil BA21 4LB

*Guide | £160,000 (plus fees)

  • End of Terrace House
  • 4 Bedrooms
  • Tenure: Freehold

Call the team on 0117 299 9889 for more information

Auction Date

Thu 07/05/2026

Auction Time

11:00

Auction Venue

Live Stream

Semi-Detached Property

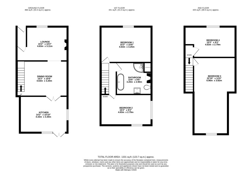
A four-bedroom house in St. Michael's Avenue, Yeovil. The property comprises of an entrance, lounge, dining room and separate kitchen on the ground floor. On the first floor there are two bedrooms and a bathroom. On the second floor there are two additional bedrooms. Externally the property benefits a brick built shed in the garden and an enclosed rear garden with views.

Tenure

Freehold

ACCOMMODATION

Lounge: 15'2" x 10'2" Dining Area: 15'2" x 10'6" Kitchen: 14'2" x 10'10" Bedroom One: 15'2" x 10'8" Bedroom Two: 15'2" x 9'2" Bedroom Three: 22'10" x 12'6" Bedroom Four: 15'2" x 9'2" Bathroom: 10'6" x 9'6"

VIEWINGS

Regular block viewing sessions will be provided in the lead up to the auction. Please telephone Auction House South West on 03456 461361 to request a viewing.

FULL DETAILS

Photographs, Dimensions, Floor Plans and Area Measurements (when available) are included within the full property details, online, via our website. All published information is to aid identification of the property and is not necessarily to scale.

NOTICE TO BIDDER

Please be aware that if your Bid is successful on Auction day the exchange of contracts will happen immediately after the Auction.

Energy Efficiency Rating (EPC)

Current Rating C70

Local Authority

South Somerset District Council

Solicitors

Wolferstans Solicitors, Ref: Ebenezer Ola, Tel: DL 01752 292325 / 01752 292318

Important Notice to Prospective Buyers:

We draw your attention to the Special Conditions of Sale within the Legal Pack, referring to other charges in addition to the purchase price which may become payable. Such costs may include Search Fees, reimbursement of Sellers costs and Legal Fees, and Transfer Fees amongst others.

Additional Fees

Buyer's Premium - £1800 inc VAT payable on exchange of contracts.

Administration Charge - £1200 inc VAT payable on exchange of contracts.

Disbursements - Please see the legal pack for any disbursements listed that may become payable by the purchaser on completion.

View Larger Map

Disclaimer: The map preview provided above is for general guidance only and may not accurately reflect the exact location or surrounding buildings. Prospective buyers and interested parties are strongly advised to independently verify the precise location and surroundings before bidding.