For Sale By Auction | 26 November 2024 | Lot 39

Basement Flat 141 Staple Hill Road, Bristol, Avon

Sold £150,000

  • Property For Sale

Call the team on 01752 474200 for more information

Auction Closed

Viewing Times

Please call Auction House South West on 01752 474200 to arrange a viewing

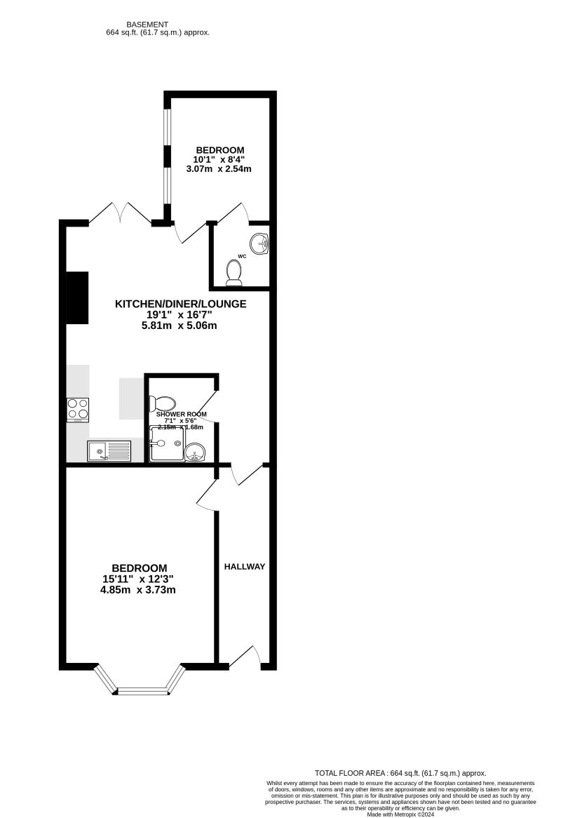
Basement FlatOffering to auction, this two bedroom basement flat situated in Fishponds, Bristol. This property would make a fantastic investment offering a potential monthly income of £1,250 and a potential yearly income of £15,000. This offers any prospective purchaser a a potential gross yield of 10.7% based on the guide price. The property is approximately five miles from Bristol City Centre and provides easy access to public transport, the Bristol – Bath cycle path and the Avon ring road and motorway networks.AUCTIONEERS NOTE: RENTAL YIELD We have been advised by a local estate agent that the potential rental income per month is £1,250 and the yearly rental income is £15,000. This offers a potential gross yield of 10.7% based on the guide price. ACCOMMODATION Entrance Hall Living/Kitchen/Dinning Room: 19'1" x 16'7" Bedroom One: 15'11" x 12'3" Bedroom Two: 10'1" x 8'4" Cloakroom: Shower Room: 7'1" x 5'6" Rear Garden VIEWINGS Regular block viewing sessions will be provided in the lead up to the auction. Please telephone Auction House South West on 03456 461361 to request a viewing. FULL DETAILS Photographs, Dimensions, Floor Plans and Area Measurements (when available) are included within the full property details, online, via our website. All published information is to aid identification of the property and is not necessarily to scale. NOTICE TO BIDDER Please be aware that if your Bid is successful on Auction day the exchange of contracts will happen immediately after the Auction.Tenure: FreeholdEPC Rating: C72

Featured Lot

False

Additional Fees

Buyer's Premium - Buyers Premium of £1,560 including VAT.

Administration Charge - Buyers Administration charge of £1,200 including VAT.

Disbursements - Please see the legal pack for any disbursements listed that may become payable by the purchaser on completion.