For Sale By Auction | 16:00, 22 July 2020 | Lot 7

172 City Road, Sheffield, South Yorkshire, S2 5HN

Sold £88,500

  • Terraced House
  • 3 Bedrooms
  • Tenure: See Legal Pack

Call the team on 0114 223 0777 for more information

Auction Date

Wed 22/07/2020

Auction Time

16:00

Auction Venue

Live Stream Live Stream, Online,

EXCELLENT BUY TO LET OPPORTUNITY IN POPULAR LOCATION OF CITY ROAD IN SHEFFIELD, WITH A CURRENT ANNUAL INCOME OF £5460 WITH POTENTIAL FOR MORE. PLEASE PRE-REGISTER TO BID.

SOLD AT AUCTION FOR £88,500 FOR SALE VIA LIVE STREAM AUCTION ON 22ND JULY - PLEASE NOTE YOU WILL NEED TO PRE-REGISTER TO BID. GUIDE £80,000+ Offered for sale via Livestream auction, we have this large three bedroom terraced house set over three floors in the popular S2 suburb of Sheffield. This spacious property has been well maintained by the current tenants and includes a large reception room, kitchen diner, three bedrooms, bathroom and rear garden. City Road has excellent links to Sheffield city centre, as well as the railway station and local shops and amenities. Currently let at £455 per month with potential to increase. VIRTUAL TOUR AVAILABLE.

Tenure

See Legal Pack

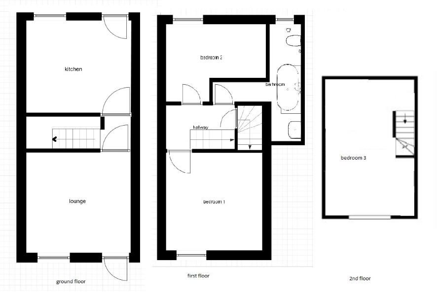
Living Room

Kitchen Diner

Bedroom One

Bedroom Two

Bedroom Three

Bathroom

Rear Garden

Energy Efficiency Rating (EPC)

Current Rating E41

Local Authority

Sheffield City Council

Solicitors

Dwyers Solicitors, 176 Stamford Street Central, Ashton-under-Lyne, OL6 7LR, Ref: Dwyers Solicitors, Tel: 0161 308 3928

Important Notice to Prospective Buyers:

We draw your attention to the Special Conditions of Sale within the Legal Pack, referring to other charges in addition to the purchase price which may become payable. Such costs may include Search Fees, reimbursement of Sellers costs and Legal Fees, and Transfer Fees amongst others.

Additional Fees

Buyer's Premium - £1200 inc VAT payable on exchange of contracts.

Administration Charge - £1200 inc VAT payable on exchange of contracts.

Disbursements - Please see the legal pack for any disbursements listed that may become payable by the purchaser on completion.

View Larger Map

Disclaimer: The map preview provided above is for general guidance only and may not accurately reflect the exact location or surrounding buildings. Prospective buyers and interested parties are strongly advised to independently verify the precise location and surroundings before bidding.