Sold Prior | Lot 2

Custom House, 17 Rawmarsh Hill, Rotherham, South Yorkshire, S62 6DP

Sold Prior

  • Block of Apartments
  • 4 Bedrooms
  • Tenure: Freehold

Call the team on 0114 223 0777 for more information

Auction Date

Thu 15/04/2021

Auction Time

14:00

Auction Venue

Live Stream Live Stream, Online,

Sold Prior to Auction

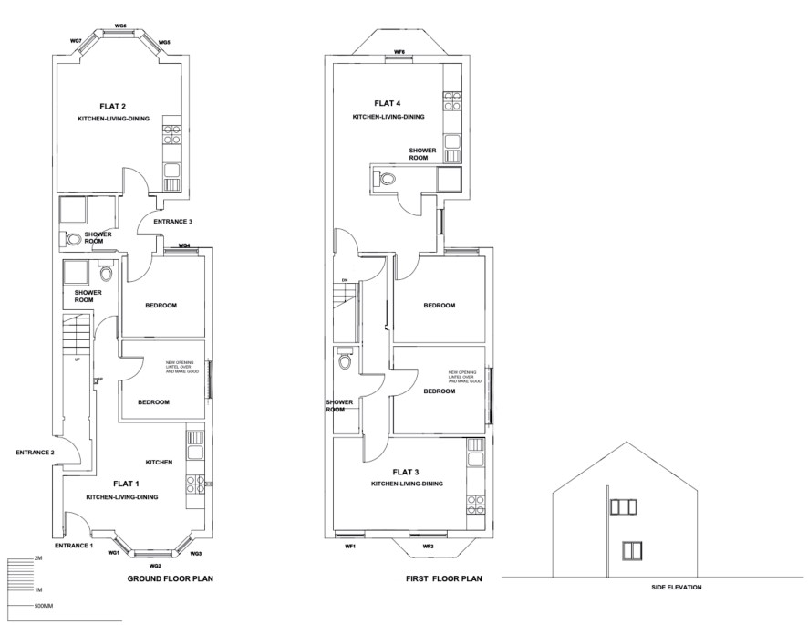
A superb opportunity to acquire a freehold block of four, one bedroom apartments that are fully let with a combined annual income of £21,900 equating to a yield in excess of 13%! All the apartments are let by working tenants and have been fully refurbished to very high standard as can be seen in the pictures. to include modern and contemporary kitchens and bathrooms, high quality flooring and neutral decor. Each apartment benefits from off-street parking and wi-fi network for tenants. The properties are walkable distance to local supermarkets and the Parkgate Retail Park, as well as being less than 2 miles to the town centre and within a short distance from Sheffield, Meadowhall and the M1 and M18 motorways.

Tenure

Freehold

Custom House, Apartment 1

Custom House, Apartment 2

Custom House, Apartment 3

Custom House, Apartment 4

Solicitors

Mark Dickinson - Dickinson Wood, Tel: 01302 329504

Important Notice to Prospective Buyers:

We draw your attention to the Special Conditions of Sale within the Legal Pack, referring to other charges in addition to the purchase price which may become payable. Such costs may include Search Fees, reimbursement of Sellers costs and Legal Fees, and Transfer Fees amongst others.

Additional Fees

Administration Charge - £1200 inc VAT payable on exchange of contracts.

Disbursements - Please see the legal pack for any disbursements listed that may become payable by the purchaser on completion.

View Larger Map

Disclaimer: The map preview provided above is for general guidance only and may not accurately reflect the exact location or surrounding buildings. Prospective buyers and interested parties are strongly advised to independently verify the precise location and surroundings before bidding.