Postponed | Lot 7

19-25 Auckland Road, Doncaster, South Yorkshire DN2 4AF

Postponed

  • Terraced House
  • Tenure: See Legal Pack

Call the team on 0114 223 0777 for more information

Auction Date

Thu 07/04/2022

Auction Time

14:00

Auction Venue

Livestream, Online

FOR SALE VIA LIVESTREAM AUCTION ON THURSDAY 07TH APRIL AT 2PM!

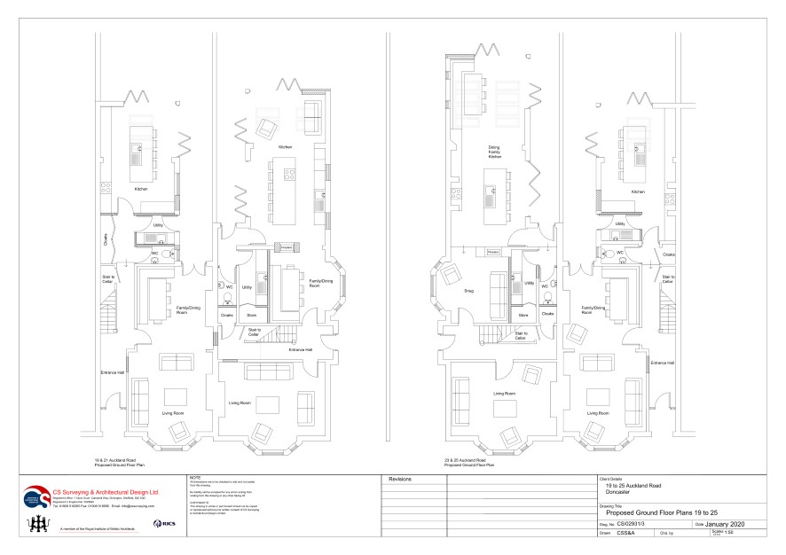
A 0.44 Acre site that comprises 4 large 4-floor Victorian terraces houses with over 1000 SqM combined GIA. The site has recently had two separate planning applications approved. Application 21/00661/FULM is for the Change of use of 19,21 and 23 from hotel to apartments, and for 25 from dwelling to apartments. The application is for 11 apartments, parking, cycle storage and new frontages. Application 20/00128/FUL is for the Change of use of 19 and 21 back to dwelling house and the erection of rear extensions to 19,21,23 and 25 and partial demolition of rear projection at the back of 21. The properties retain much of the original character and charm with a minton tiled floor, ornate ceiling roses, and stained glass. The properties seem to have been rewired however the Auctioneers cannot guarantee or confirm if this is a full or partial rewire. Auckland Road is located in Doncaster DN2, a short distance away from Doncaster Town Centre and Doncaster College. Also within walking distance of the train station for commuting into nearby towns and cities. 19 Auckland Road provides five bedrooms and three receptions rooms over three floors and parking to the front. 21 Auckland Road provides 14 rooms and 2 bathrooms over the ground, first and second Floors with a substantial Basement and garage to the rear. 23 Auckland Road provides five bedrooms and three receptions rooms over three floors. There is parking to the front, side and a garage to the rear. 25 Auckland Road provides five bedrooms and three receptions rooms over three floors and parking to the front. Auckland Road is located in Doncaster DN2, a short distance away from Doncaster Town Centre and College. Also within walking distance of the train station for commuting into nearby towns and cities. VIEWINGS BY REQUEST - CALL THE TEAM TO BOOK IN!

Tenure

See Legal Pack

Energy Efficiency Rating (EPC)

Current Rating tbc

Local Authority

Doncaster Metropolitan Borough Council

Solicitors

Hewitson and Harker, 23 Worksop Road, Ref: Hewitson and Harker, Tel: 0114 551 0900

Important Notice to Prospective Buyers:

We draw your attention to the Special Conditions of Sale within the Legal Pack, referring to other charges in addition to the purchase price which may become payable. Such costs may include Search Fees, reimbursement of Sellers costs and Legal Fees, and Transfer Fees amongst others.

Additional Fees

Buyer's Premium - £1200 inc VAT payable on exchange of contracts.

Administration Charge - £1200 inc VAT payable on exchange of contracts.

Disbursements - Please see the legal pack for any disbursements listed that may become payable by the purchaser on completion.

View Larger Map

Disclaimer: The map preview provided above is for general guidance only and may not accurately reflect the exact location or surrounding buildings. Prospective buyers and interested parties are strongly advised to independently verify the precise location and surroundings before bidding.